Pagina 3 - Indice
Indice 3 Indicazioni per la sicurezza e avvertenze ....................................................... 5 Il Vostro contributo alla tutela dell'ambiente .................................................. 16 Panoramica ..................................................................................
Pagina 5 - Indicazioni per la sicurezza e avvertenze
Indicazioni per la sicurezza e avvertenze 5 Questo elettrodomestico è conforme alle vigenti norme in materiadi sicurezza. Un uso improprio può comunque causare danni apersone e/o cose. Leggere attentamente le istruzioni d'uso e di montaggio prima dimettere in funzione il piano cottura. Contengono in...
Pagina 6 - Uso corretto; Questo piano cottura è destinato esclusivamente all'uso domesti-
Indicazioni per la sicurezza e avvertenze 6 Uso corretto Questo piano cottura è destinato esclusivamente all'uso domesti- co. Questo apparecchio non è destinato all'impiego in ambienti ester- ni. Esso è destinato esclusivamente all'uso in ambito domestico per preparare e tenere in caldo le pie...
Pagina 7 - Bambini; ni, in alternativa sorvegliarli costantemente.
Indicazioni per la sicurezza e avvertenze 7 Bambini Tenere lontano dal piano cottura i bambini al di sotto degli otto an- ni, in alternativa sorvegliarli costantemente. I ragazzini più grandi e responsabili (a partire dagli otto anni) pos- sono eventualmente utilizzare l'apparecchio senza sorveg...
Pagina 8 - Sicurezza tecnica; Un piano cottura danneggiato può essere pericoloso per la sicu-
Indicazioni per la sicurezza e avvertenze 8 Sicurezza tecnica Riparazioni o lavori di installazione e di manutenzione non corret- tamente eseguiti possono mettere seriamente in pericolo l'utente.Lavori di installazione e manutenzione nonché riparazioni possonoessere eseguiti solo da personale tecn...
Pagina 10 - Se il piano cottura è stato montato dietro il frontale di un mobile
Indicazioni per la sicurezza e avvertenze 10 Se il piano cottura è stato montato dietro il frontale di un mobile (p.es. un'anta), non chiudere mai l'anta, mentre si utilizza l'elettrodo-mestico. Dietro il frontale del mobile chiuso si formano calore e umi-dità. Si possono danneggiare l'elettrodome...
Pagina 11 - Impiego corretto
Indicazioni per la sicurezza e avvertenze 11 Impiego corretto Quando è in funzione, il piano cottura diventa molto caldo e rima- ne tale per un po' di tempo anche dopo che è stato spento. Soloquando le indicazioni del calore residuo si spengono non si corre al-cun pericolo di scottarsi. L'olio o...
Pagina 12 - Quando il piano è acceso, o se lo si accende inavvertitamente op-
Indicazioni per la sicurezza e avvertenze 12 Quando il piano è acceso, o se lo si accende inavvertitamente op- pure se è ancora presente calore residuo sussiste il pericolo che og-getti metallici eventualmente appoggiati sulla superficie del pianopossano surriscaldarsi. Altri materiali possono fon...
Pagina 13 - Se sul piano cottura molto caldo cadono zucchero, sostanze zuc-
Indicazioni per la sicurezza e avvertenze 13 Se sul piano cottura molto caldo cadono zucchero, sostanze zuc- cherine, plastica o carta stagnola e si fondono, quando si raffredda-no possono danneggiare la superficie in vetroceramica. Spegneresubito il piano cottura ed eliminare subito e a fondo que...
Pagina 14 - Oggetti metallici, conservati in un cassetto posto sotto il piano
Indicazioni per la sicurezza e avvertenze 14 Oggetti metallici, conservati in un cassetto posto sotto il piano cottura, possono diventare molto caldi se il piano cottura viene usatoin maniera intensa e prolungata. Il piano cottura è dotato di una ventola di raffreddamento. Se sot- to l'apparecch...
Pagina 15 - Pulizia e manutenzione; Il vapore di un apparecchio di pulizia a vapore può giungere alle
Indicazioni per la sicurezza e avvertenze 15 Pulizia e manutenzione Il vapore di un apparecchio di pulizia a vapore può giungere alle parti che conducono tensione e causare un corto circuito.Per pulire l'apparecchio non utilizzare mai un apparecchio a vapore. Se l'apparecchio viene incassato sop...
Pagina 16 - Il Vostro contributo alla tutela dell'ambiente; Smaltimento dell’imballaggio
Il Vostro contributo alla tutela dell'ambiente 16 Smaltimento dell’imballaggio L’imballaggio ha lo scopo di proteggerela merce da eventuali danni di trasporto.I materiali utilizzati per l’imballaggio so-no riciclabili, in quanto selezionati se-condo criteri di rispetto dell’ambiente edi facilità di ...
Pagina 18 - Comandi e spie; Tasti sensore
Panoramica 18 Comandi e spie Tasti sensore a Piano cottura On/Off b Stop&GoPer fermare/avviare un processo di cottura in corso c Protezione per la puliziaPer bloccare i tasti sensore d Zone di cottura PowerFlexPer collegare/separare manualmente le zone cottura PowerFlex e Tenere in caldoPer atti...
Pagina 19 - Informazioni sulle zone cottura; Zona cottura
Panoramica 19 Indicazioni/Spie i Abbinamento zone cottura Spegnimento automaticoLo spegnimento automatico per la zona cottura è attivato j Calore residuo k BoosterBooster attivato l Display del timer da : a : Durata Il blocco accensione/blocco comandi è attivato Modalità demo attivata...
Pagina 20 - Funzionamento; Pericolo di ustionarsi a causa di; Rumori
Funzionamento 20 Sotto ogni zona cottura è situata unabobina a induzione. Questa bobina ge-nera un campo magnetico che agiscedirettamente sul fondo delle stoviglie elo riscalda. La zona cottura si riscaldasolo indirettamente per il calore cedutodalla pentola. L'induzione funziona solo appoggiando-vi...
Pagina 21 - Power Management; - la cottura iniziale viene disattivata. La
Funzionamento 21 Power Management Il piano cottura dispone di una potenzaassorbita massima che per motivi di si-curezza non può essere superata. Le due zone sul piano cottura sono col-legate tra di loro. Mediante il collega-mento è possibile trasferire potenza ag-giuntiva da una zona cottura a un'al...
Pagina 22 - Stoviglie di cottura; Stoviglie adatte
Stoviglie di cottura 22 Stoviglie adatte - Acciaio inossidabile con fondo ma- gnetizzabile - Acciaio smaltato - Ghisa Le caratteristiche del fondo delle stovi-glie possono influenzare i risultati dicottura (p.es. la doratura di frittate puòrisultare non uniforme). Il fondo dellestoviglie deve distri...
Pagina 23 - Suggerimenti; - Posizionare le stoviglie di cottura sul-
Stoviglie di cottura 23 Suggerimenti - Per un uso ottimale della zona cottu- ra, scegliere un recipiente con un dia-metro del fondo adatto (v. cap. "Pa-noramica", par. "Informazioni zonecottura"). Se la pentola è troppo pic-cola, non viene riconosciuta. - Posizionare le stoviglie di ...
Pagina 24 - Al primo avvio
Al primo avvio 24 Incollare la targhetta dati compresanella documentazione dell'apparec-chio nell'apposito spazio al capitolo“Assistenza tecnica”. Rimuovere eventuali pellicole protetti-ve e adesivi. Pulire per la prima volta l'ele-mento SmartLine Prima di mettere in funzione l'appa-recchio pe...
Pagina 25 - Modalità di utilizzo; Impostazioni; deve essere premuto un po' più a
Modalità di utilizzo 25 Impostazioni L'elemento SmartLine è dotato di sen-sori elettronici che reagiscono se sisfiorano col dito. Il tasto sensore On/Off deve essere premuto un po' più a lungo per motivi di sicurezza al momen-to dell'accensione rispetto agli altri ta-sti.Ogni reazione dei tasti se...
Pagina 26 - Pericolo di incendio a causa de-; Accendere il piano cottura.; Toccare il tasto sensore; Impostare il livello di potenza
Modalità di utilizzo 26 Pericolo di incendio a causa de- gli alimenti surriscaldati.Gli alimenti non sorvegliati possonosurriscaldarsi e prendere fuoco.Sorvegliare sempre il piano di cotturaquando è in funzione. Tenere in considerazione che il tem-po di riscaldamento dei piani cotturaa induzione è...
Pagina 27 - Spia calore residuo; Pericolo di ustionarsi a causa
Modalità di utilizzo 27 Spia calore residuo Se una zona cottura è calda, dopo lospegnimento rimane accesa la spia delcalore residuo. A seconda della tempe-ratura compare sopra i livelli di potenza1, 2 e 3 rispettivamente un punto. I punti dell’indicazione di calore residuosi spengono l’uno dopo l’al...
Pagina 28 - Area di cottura PowerFlex; toccare il tasto sensore
Modalità di utilizzo 28 Area di cottura PowerFlex Le zone cottura PowerFlex si azionanoin automatico per creare un'area di cot-tura PowerFlex quando si appoggianostoviglie sufficientemente grandi (v. cap."Panoramica", par. "Piano cottura"). Leimpostazioni per l'area cottura sono ge-s...
Pagina 29 - oppure
Modalità di utilizzo 29 Dispositivo automatico di iniziocottura Se il dispositivo automatico di iniziocottura è attivo, la zona cottura riscaldaimmediatamente a piena potenza perpoi commutare sul livello di continua-zione della cottura scelto dall’utente. Iltempo di inizio cottura dipende dal livel-...
Pagina 30 - Booster; Attivare TwinBooster
Modalità di utilizzo 30 Booster Le zone cottura sono dotate di Twin-Booster. Il Booster rafforza la potenza, affinché sipossano riscaldare grandi quantità p.es.di acqua per cuocere la pasta. Questorafforzamento di potenza è attivo permax. 15 minuti. Se si attiva il Booster, si possono mo-dificare le...
Pagina 31 - Tenere in caldo; - Tenere in caldo le pietanze solo nelle
Modalità di utilizzo 31 Tenere in caldo La funzione tenere in caldo non serveper riscaldare nuovamente pietanzeraffreddatesi bensì per tenere in caldopietanze molto calde subito dopo lapreparazione. La durata massima di Tenere in caldo èdi 2 ore. - Tenere in caldo le pietanze solo nelle stoviglie in...
Pagina 33 - Consigli per risparmiare energia elettrica; - Per quantità ridotte si consiglia di uti-
Consigli per risparmiare energia elettrica 33 - Usare possibilmente sempre il coper- chio per evitare l'inutile dispersione dicalore. - Per quantità ridotte si consiglia di uti- lizzare una pentola più piccola. Unapentola di piccole dimensioni ha bi-sogno di meno energia elettrica ri-spetto a una pe...
Pagina 34 - Timer; Impostare il timer
Timer 34 L'elemento Smart Line deve essereacceso per poter utilizzare il timer. Il timer ha 2 funzioni: - per impostare una durata breve - per lo spegnimento automatico di una zona cottura/di una resistenza/diun'area Teppan Le funzioni possono essere utilizzatecontemporaneamente. È possibile imposta...
Pagina 35 - Spegnimento automatico; Impostare il tempo di spegnimento
Timer 35 Spegnimento automatico È possibile impostare una durata al ter-mine della quale la zona cottura si spe-gne in automatico. La funzione può es-sere utilizzata contemporaneamente pertutte le zone cottura. La zona cottura viene spenta automa-ticamente dalla funzione di spegni-mento automatico s...
Pagina 36 - finché la
Timer 36 Usare contemporaneamente lefunzioni del timer Se si utilizzano le funzioni contempora-neamente, compare sempre la duratapiù breve. Il tasto sensore (tempo breve) oppure la spia della zona cotturacon la durata più breve lampeggia. Se si vogliono visualizzare le durateresidue che scorrono...
Pagina 37 - Funzioni supplementari; Attivazione/disattivazione; Recall
Funzioni supplementari 37 Stop&Go Con l'attivazione di Stop&Go il livello dipotenza di tutte le zone cottura accesesi riduce a 1.I livelli di potenza delle zone cottura el'impostazione del timer non possonoessere modificati; è possibile solo spe-gnere il piano cottura. Tempo breve,tempi di s...
Pagina 38 - Protezione per la pulizia; Attivazione; Modalità demo; Attivare/disattivare la modalità demo
Funzioni supplementari 38 Protezione per la pulizia È possibile bloccare i tasti sensoredell'elemento SmartLine per 20 se-condi per rimuovere p.es. lo sporco. Iltasto sensore non viene bloccato. Attivazione Toccare il tasto sensore . Sul display del timer il tempo scorre aritroso. Disattivazio...
Pagina 39 - Dispositivi di sicurezza
Dispositivi di sicurezza 39 Blocco accensione/Blocco co-mandi Il blocco comandi si disattiva in casodi interruzione della corrente elettri-ca. L’apparecchio è dotato di un blocco ac-censione e un blocco comandi. In que-sto modo l'elemento non può essereacceso; inoltre non è nemmeno possibi-le modifi...
Pagina 40 - Spegnimento di sicurezza; I tasti sensore sono coperti
Dispositivi di sicurezza 40 Spegnimento di sicurezza I tasti sensore sono coperti Se uno o più tasti sensore rimangonocoperti per più di 10 secondi, p.es. percontatto, a causa del trabocco dellepietanze o di oggetti appoggiati, l'ele-mento SmartLine si spegne automatica-mente. Tramite il tasto senso...
Pagina 41 - Bobine a induzione
Dispositivi di sicurezza 41 Dispositivo antisurriscalda-mento Tutte le bobine di induzione e il dissipa-tore di calore dell'elettronica sono ri-spettivamente dotati di un dispositivoantisurriscaldamento. Prima che le bo-bine di induzione e/o il dissipatore dicalore possano surriscaldarsi, il disposi...
Pagina 42 - Programmazione; Modificare la programmazione
Programmazione 42 È possibile adattare la programmazionedell'elemento SmartLine alle proprieesigenze. Si possono modificare diver-se impostazioni in sequenza. Dopo aver visualizzato la programma-zione compare il simbolo e sul di- splay timer . Dopo alcuni secondi lampeggiano sul display del tim...
Pagina 45 - Indicazioni per organismi di controllo; Di serie sono impostati 9 livelli di potenza.
Indicazioni per organismi di controllo 45 Pietanze test secondo EN 60350-2 Di serie sono impostati 9 livelli di potenza. Per la verifica secondo la norma impostare i livelli di potenza ampliati (v. capitolo“Programmazione”). Pietanza test Fondo stoviglie di cot- tura (mm) Coper- chio Livello poten...
Pagina 46 - Prodotti non adatti
Pulizia e manutenzione 46 Pericolo di ustionarsi a causa delle zone cottura molto calde.Al termine del processo di cottura lezone sono molto calde.Spegnere il piano cottura.Far raffreddare le zone cottura primadi pulire il piano. Danni materiali a causa dell'umi- dità penetrata.Il vapore di un a...
Pagina 47 - Macchie
Pulizia e manutenzione 47 Danni causati da oggetti appun- titi.Il nastro di tenuta tra l'elementoSmartLine e il piano di lavoro puòdanneggiarsi.Per la pulizia non utilizzare oggettiappuntiti. Con il detersivo per i piatti non si rie-scono a eliminare tutti i residui e leincrostazioni.Si crea una p...
Pagina 48 - Segnalazioni sulle spie/sul display
Cosa fare se... 48 La maggior parte dei guasti che si verificano durante l'uso quotidiano dell'appa-recchio può essere eliminata personalmente, senza difficoltà. In molti casi è possi-bile risparmiare tempo e costi senza doversi necessariamente rivolgere all'assi-stenza tecnica. Le tabelle che seguo...
Pagina 50 - Comportamento inaspettato; Problema
Cosa fare se... 50 Comportamento inaspettato Problema Causa e rimedio Il livello di potenza im-postato lampeggia. Sulla zona cottura non sono state appoggiate stovi-glie oppure le stoviglie appoggiate non sono adatte. Utilizzare stoviglie adatte (v. cap. “Induzione”, ca-poverso “Stoviglie adatte”)...
Pagina 52 - Risultato non soddisfacente; Problemi generali o guasti tecnici
Cosa fare se... 52 Risultato non soddisfacente Problema Causa e rimedio Con il dispositivo auto-matico di inizio cotturaattivato il contenutodelle stoviglie non sicuoce. Si riscaldano grandi quantità di alimenti. Selezionare il livello di potenza più alto e abbassa-re poi manualmente la temperatur...
Pagina 54 - Accessori su richiesta; Panno in microfibra; Per rimuovere impronte e sporco lieve.
Accessori su richiesta 54 Miele offre un vasto assortimento di ac-cessori e prodotti per la pulizia e la ma-nutenzione adatti all'elettrodomestico indotazione. Questi prodotti possono essere facil-mente ordinati tramite internet al sitowww.miele.it. In alternativa sono reperibili presso ilservizio d...
Pagina 55 - Assistenza tecnica; Contatti in caso di guasto
Assistenza tecnica 55 Contatti in caso di guasto In caso di guasti che non si è in grado di risolvere da soli, contattare il negoziospecializzato Miele o il servizio di assistenza tecnica Miele. È possibile visualizzare i contenuti online dell'assistenza tecnica sottowww.miele.it/elettrodomestico/se...
Pagina 56 - Installazione; Istruzioni di sicurezza per il montaggio; Danni causati da montaggio errato.; Le impiallacciature del piano di lavoro devono essere applicate
Installazione *INSTALLATION* 56 Istruzioni di sicurezza per il montaggio Danni causati da montaggio errato. Un montaggio errato può danneggiare l'elemento SmartLine.Far montare l'elemento SmartLine solo da personale qualificato. Pericolo di scossa elettrica a causa della tensione di rete. Un all...
Pagina 57 - Distanze di sicurezza
Installazione *INSTALLATION* 57 Distanze di sicurezza Distanza di sicurezza sopra l'elemen-to SmartLine Tra l'elemento SmartLine e una cappaaspirante posta al di sopra dell’appa-recchio è necessario mantenere la di-stanza di sicurezza indicata dalla casaproduttrice. Se sopra l'apparecchio fossero in...
Pagina 58 - dietro
Installazione *INSTALLATION* 58 Distanza di sicurezza verso i lati / laparete posteriore L'elemento SmartLine deve essere in-cassato preferibilmente lasciando moltospazio a destra e a sinistra. Sul retro dell'elemento SmartLine deveessere rispettata la distanza minima in-dicata in basso rispetto a...
Pagina 59 - mm
Installazione *INSTALLATION* 59 Distanza minima sotto l'elementoSmartLine Per garantire la corretta aerazionedell'elemento SmartLine, sotto il pianocottura è necessario mantenere una di-stanza minima verso un forno, un ripia-no intermedio o un cassetto. La distanza minima dal bordo inferioredell'ele...
Pagina 60 - Distanza di sicurezza dal rivestimento della nicchia
Installazione *INSTALLATION* 60 Distanza di sicurezza dal rivestimento della nicchia Se si applica un rivestimento sulla nicchia occorre rispettare una distanza minimatra l'intaglio del piano di lavoro e il rivestimento poiché le temperature elevate pos-sono modificare o danneggiare i materiali. Se ...
Pagina 61 - Piano di lavoro in piastrelle
Installazione *INSTALLATION* 61 Indicazioni relative al montag-gio – cornice rialzata Guarnizione tra elemento SmartLinee piano di lavoro Elemento SmartLine e piano di lavo-ro possono danneggiarsi in caso dismontaggio dell'elemento, se vieneapplicato del materiale isolante per lefessure.Non utilizza...
Pagina 64 - Montaggio con aspiratore per piano cottura
Installazione *INSTALLATION* 64 Montaggio con aspiratore per piano cottura Combinazioni Numero x larghezza [mm] Misura B [mm] Elementi di cottura Aspiratore per piano cottura 1 x 378 1 x 120 481 2 x 378 1 x 120 862 1 x 3781 x 620 2 x 120 1226 3 x 378 2 x 120 1365 2 x 3781 x 620 2 x 120 1607 4 x 378 ...
Pagina 65 - Montaggio senza aspiratore per piano cottura
Installazione *INSTALLATION* 65 Montaggio senza aspiratore per piano cottura Combinazioni Numero x larghezza [mm] Misura B [mm] Elementi di cottura 1 x 378 359 2 x 378 740 1 x 3781 x 620 982 3 x 378 1121 2 x 3781 x 620 1363 4 x 378 1502 2 x 3781 x 800 1554 2 x 3781 x 936 1680
Pagina 66 - Listelli di copertura – cornice rialzata; Montaggio di 3 elementi e 2 listelli di copertura
Installazione *INSTALLATION* 66 Listelli di copertura – cornice rialzata Se si montano più elettrodomestici, è necessario applicare dei listelli intermedi tradi loro. Sono necessarie le graffe fornite solo per l'incasso di un CSDA 700x FL. Montaggio di 3 elementi e 2 listelli di copertura
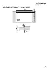
Pagina 68 - Incasso – cornice rialzata; Predisporre il piano di lavoro
Installazione *INSTALLATION* 68 Incasso – cornice rialzata Predisporre il piano di lavoro Praticare l'intaglio nel piano di lavoro.Rispettare le distanze di sicurezza (v.cap. “Installazione”, par. “Distanze disicurezza”). Sigillare le superfici di intaglio dei piani di lavoro in legno con lacca ...
Pagina 69 - Incassare l'elemento SmartLine
Installazione *INSTALLATION* 69 Incassare l'elemento SmartLine Incollare il nastro di guarnizione sottoil bordo dell'elemento SmartLine. Nonapplicare il nastro di guarnizione sot-to tensione. Far passare il cavo di alimentazioneverso il basso attraverso l'intaglio nelpiano di lavoro. Appoggiar...
Pagina 70 - Piani di lavoro in pietra naturale
Installazione *INSTALLATION* 70 Indicazioni per l'incasso – a filo Un incasso a filo è possibile solo neipiani di lavoro in pietra naturale (grani-to, marmo), legno massello e piastrel-lati. Per piani di lavoro in altri materiali,rivolgersi al produttore per verificarese sono adatti all'incasso di u...
Pagina 72 - Intaglio piano di lavoro – a filo; Piano di lavoro in pietra naturale
Installazione *INSTALLATION* 72 Intaglio piano di lavoro – a filo B 0 50 A 524 50 0 + 1 + 1 ß R 4 B A 0 2 12 0 1 0 5,5 + 0,5 * / 7 + 0,5 0 2 12 0 1 0 5,5 + 0,5 * / 7 + 0,5 + 1 + 1 + 1 + 1 B A + 1 + 1 Piano di lavoro in pietra naturale Piano di lavoro in legno * 7 + 0,5 mm per CS 7611 FL
Pagina 75 - Listelli intermedi – a filo
Installazione *INSTALLATION* 75 Listelli intermedi – a filo Se si montano più elettrodomestici, è necessario applicare dei listelli intermedi tradi loro. Sono necessarie le graffe fornite solo per l'incasso di un CSDA 700x FL. Montaggio di 3 elementi e 2 listelli di copertura
Pagina 77 - Incasso – a filo
Installazione *INSTALLATION* 77 Incasso – a filo Predisporre il piano di lavoro Praticare l'intaglio nel piano di lavoro.Rispettare le distanze di sicurezza (v.cap. “Installazione”, par. “Distanze disicurezza”). Sigillare le superfici di intaglio dei piani di lavoro in legno con lacca speciale, ...
Pagina 79 - Allacciamento elettrico; Danni causati da allacciamento
Installazione *INSTALLATION* 79 Allacciamento elettrico Danni causati da allacciamento errato.Riparazioni o lavori di installazione edi manutenzione non correttamenteeseguiti possono mettere seriamentein pericolo l'utente.Miele rende noto che non si assumealcuna responsabilità per danni diret-ti o...
Pagina 80 - Pericolo di scossa elettrica a
Installazione *INSTALLATION* 80 Staccare l’apparecchio dalla reteelettrica Pericolo di scossa elettrica a causa della tensione di rete.Nel corso di lavori di riparazione e/omanutenzione una riattivazione dellatensione di rete può causare un cortocircuito.Dopo il distacco accertarsi che nonci possa...
Pagina 81 - Schede prodotti; Informazioni sui piani cottura elettrici a uso domestico
Schede prodotti 81 Le schede prodotti dei modelli descritti nelle presenti istruzioni d'uso sono allegatedi seguito. Informazioni sui piani cottura elettrici a uso domestico ai sensi del regolamento (UE) n. 66/2014 MIELE Identificativo del modello CS 7612 Numero di zone e/o aree di cottura 2 Per zon...