Pagina 3 - Indice
Indice 3 Indicazioni per la sicurezza e avvertenze ....................................................... 5 Il Vostro contributo alla tutela dell'ambiente .................................................. 16 Panoramica ..................................................................................
Pagina 4 - Commutazione su un altro tipo di gas
Indice 4 Indicazioni relative al montaggio – cornice rialzata ............................................. 40Intaglio piano di lavoro – cornice rialzata ............................................................ 42Listelli di copertura – cornice rialzata .............................................
Pagina 5 - Indicazioni per la sicurezza e avvertenze
Indicazioni per la sicurezza e avvertenze 5 Il wok è conforme alle vigenti norme di sicurezza. Un uso impro-prio può comunque causare danni a persone e/o cose. Leggere attentamente le istruzioni d'uso e di montaggio prima dimettere in funzione il wok. Contengono informazioni importanti suincasso, si...
Pagina 6 - Uso corretto; Questo wok è destinato esclusivamente all'uso domestico.
Indicazioni per la sicurezza e avvertenze 6 Uso corretto Questo wok è destinato esclusivamente all'uso domestico. Non è destinato all'impiego in ambienti esterni. Esso è destinato esclusivamente all'uso in ambito domestico per preparare e tenere in caldo le pietanze. Qualsiasi altro impiego no...
Pagina 7 - Bambini
Indicazioni per la sicurezza e avvertenze 7 Bambini Tenere lontano dal wok i bambini al di sotto degli otto anni, in al- ternativa sorvegliarli costantemente. I ragazzini più grandi e responsabili (in ogni caso non al di sotto degli otto anni) possono utilizzare il wok senza sorveglianza solo ed...
Pagina 8 - Sicurezza tecnica; Un wok danneggiato può essere pericoloso per la sicurezza. Con-
Indicazioni per la sicurezza e avvertenze 8 Sicurezza tecnica Riparazioni o lavori di installazione e di manutenzione non corret- tamente eseguiti possono mettere seriamente in pericolo l'utente.Lavori di installazione e manutenzione nonché riparazioni possonoessere eseguiti solo da personale tecn...
Pagina 10 - Pericolo di scossa elettrica.
Indicazioni per la sicurezza e avvertenze 10 Pericolo di scossa elettrica. Non mettere in funzione o spegnere subito il Wok se la lastra in ve-troceramica è danneggiata o crepata. Staccare l'apparecchio dallarete elettrica e dalla rete del gas. Contattare il servizio di assistenzatecnica Miele. ...
Pagina 11 - Impiego corretto
Indicazioni per la sicurezza e avvertenze 11 Impiego corretto Il wok in funzione diventa molto caldo e rimane caldo anche per un certo tempo dopo averlo spento. Non toccare l'elettrodomesticofinché è ancora caldo. Oggetti nelle immediate vicinanze del wok acceso possono inizia- re a bruciare a c...
Pagina 14 - Se l'apparecchio non viene utilizzato per un periodo molto lungo,
Indicazioni per la sicurezza e avvertenze 14 Se l'apparecchio non viene utilizzato per un periodo molto lungo, pulirlo accuratamente ed eventualmente farlo controllare da persona-le specializzato prima di rimetterlo in funzione. Se si mette in funzione l'elemento di cottura a gas accanto all'asp...
Pagina 15 - Pulizia e manutenzione; Il vapore di un apparecchio di pulizia a vapore può giungere alle
Indicazioni per la sicurezza e avvertenze 15 Pulizia e manutenzione Il vapore di un apparecchio di pulizia a vapore può giungere alle parti che conducono tensione e causare un corto circuito.Per pulire il wok non utilizzare mai un apparecchio a vapore. Miele garantisce la fornitura di pezzi di r...
Pagina 16 - Il Vostro contributo alla tutela dell'ambiente; Smaltimento dell’imballaggio
Il Vostro contributo alla tutela dell'ambiente 16 Smaltimento dell’imballaggio L’imballaggio ha lo scopo di proteggerela merce da eventuali danni di trasporto.I materiali utilizzati per l’imballaggio so-no riciclabili, in quanto selezionati se-condo criteri di rispetto dell’ambiente edi facilità di ...
Pagina 18 - Manopole
Panoramica 18 Manopole a Bruciatore off Afflusso gas bloccato b Fiamma molto alta Il bruciatore esterno e interno funzionano al massimo c Fiamma alta Il bruciatore esterno funziona al minimo e quello interno al massimo d Posizione passaggio combustioneIl bruciatore esterno passa dalla posizio...
Pagina 20 - Accessori in dotazione; Anello Wok
Panoramica 20 Accessori in dotazione Si possono ordinare tutti gli accessori indotazione e non, per i dettagli v. cap.“Accessori su richiesta”. Anello Wok L'anello Wok in dotazione garantisce ul-teriore stabilità alle stoviglie, soprattuttodi Wok a fondo bombato. Adattatore Volendo usare stoviglie d...
Pagina 21 - Al primo avvio
Al primo avvio 21 Incollare la targhetta dati compresanella documentazione dell'apparec-chio nell'apposito spazio al capitolo“Assistenza tecnica”. Rimuovere eventuali pellicole protetti-ve e adesivi. Pulire per la prima volta l'ele-mento SmartLine Pulire i componenti mobili del brucia-tore con...
Pagina 22 - Stoviglie; Diametro minimo fondo stoviglie di
Stoviglie 22 Diametro minimo fondo stoviglie di cottura [cm] Padelle/Pentole 14 Diametro superiore massimo stovi- glie di cottura [cm] Padelle/Pentole 30 - Si consiglia di attenersi alle misure in- dicate nella tabella. Utilizzare pentoletroppo grandi fa sì che le fiamme sidiffondano e possano causa...
Pagina 24 - Modalità di utilizzo; Accensione; Pericolo di incendio a causa de-; FlameGuard
Modalità di utilizzo 24 Accensione Se l'elemento di cottura a gas è posi-zionato accanto all'aspiratore perpiano cottura, il funzionamento delprimo ne viene influenzato.Tra elemento di cottura del gas easpiratore per piano cottura posizio-nare la FlameGuard (il deflettorefiamma). Pericolo di incen...
Pagina 25 - Regolare la fiamma
Modalità di utilizzo 25 Regolare la fiamma Dal momento che la parte esterna del-la fiamma del gas è molto più calda ri-spetto al nucleo della fiamma, le puntedella fiamma devono rimanere sotto ilfondo della pentola. Se le punte dellafiamma fuoriescono, rilasciano inutilecalore all'aria, danneggiano ...
Pagina 26 - Consigli per risparmiare energia elettrica; - Utilizzare pentole larghe e basse piut-
Consigli per risparmiare energia elettrica 26 - Usare possibilmente sempre il coper- chio per evitare l'inutile dispersione dicalore. - Utilizzare pentole larghe e basse piut- tosto che pentole strette e alte. Si ri-scaldano meglio. - Si consiglia di cuocere con poca ac- qua. - Dopo l'inizio cottura...
Pagina 27 - Dispositivi di sicurezza
Dispositivi di sicurezza 27 Sicurezza di accensione ter-moelettrica Questo apparecchio è dotato di una ter-mocoppia di sicurezza. Se la fiammadel gas si spegne, p.es. a causa di pie-tanze traboccate o corrente d'aria, l'af-flusso del gas si blocca. Così si impedi-sce la fuoriuscita di gas. Ruotando ...
Pagina 28 - Prodotti non adatti
Pulizia e manutenzione 28 Pericolo di ustionarsi a causa delle superfici molto calde.Al termine del procedimento di cottu-ra la superficie del wok, le griglie e ibruciatori sono molto caldi.Far raffreddare le superfici prima dipulire il wok. Danni materiali a causa dell'umi- dità penetrata.Il va...
Pagina 29 - Macchie
Pulizia e manutenzione 29 Pulire la superficie in vetroce-ramica Danni causati da oggetti appun- titi.Il nastro di tenuta tra l'elementoSmartLine e il piano di lavoro puòdanneggiarsi.Per la pulizia non utilizzare oggettiappuntiti. Con il detersivo per i piatti non si rie-scono a eliminare tutti i ...
Pagina 30 - Pulire le manopole; Rimuovere le griglie.
Pulizia e manutenzione 30 Pulire le manopole Pulire la/e manopola/e con un pannospugna, un po' di detersivo per i piattie dell'acqua calda. Se lo sporco èostinato, ammorbidire le macchie la-sciando agire il prodotto. Asciugare la/e manopola/e con unpanno pulito e asciutto. Pulire le griglie Ri...
Pagina 31 - Pulire i bruciatori; Riassemblare i bruciatori
Pulizia e manutenzione 31 Pulire i bruciatori Non lavare assolutamente i compo-nenti dei bruciatori in lavastoviglie. Con il passare del tempo la superficiedel coprispartifiamma potrebbe diven-tare opaca. Questo fenomeno è nor-male, il materiale non è difettoso. Rimuovere tutti i componenti mobili...
Pagina 34 - Accessori su richiesta; Per rimuovere impronte e sporco lieve.
Accessori su richiesta 34 Miele offre un vasto assortimento di ac-cessori e prodotti per la pulizia e la ma-nutenzione adatti all'elettrodomestico indotazione. Questi prodotti possono essere facil-mente ordinati tramite internet al sitowww.miele.it. In alternativa sono reperibili presso ilservizio d...
Pagina 35 - Assistenza tecnica; Contatti in caso di guasto
Assistenza tecnica 35 Contatti in caso di guasto In caso di guasti che non si è in grado di risolvere da soli, contattare il negoziospecializzato Miele o il servizio di assistenza tecnica Miele. È possibile visualizzare i contenuti online dell'assistenza tecnica sottowww.miele.it/elettrodomestico/se...
Pagina 36 - Installazione; Istruzioni di sicurezza per il montaggio; Danni causati da montaggio errato.
Installazione *INSTALLATION* 36 Istruzioni di sicurezza per il montaggio Danni causati da montaggio errato. Un montaggio errato può danneggiare l'elemento SmartLine.Far montare l'elemento SmartLine solo da personale qualificato. Danni causati da oggetti caduti. Quando si montano i mobili pensile...
Pagina 37 - Distanze di sicurezza
Installazione *INSTALLATION* 37 Distanze di sicurezza Distanza di sicurezza sopra l'elemen-to SmartLine Tra l'elemento SmartLine e una cappaaspirante posta al di sopra dell’appa-recchio è necessario mantenere la di-stanza di sicurezza indicata dalla casaproduttrice. Se sopra l'apparecchio fossero in...
Pagina 38 - dietro
Installazione *INSTALLATION* 38 Distanza di sicurezza verso i lati / laparete posteriore L'elemento SmartLine deve essere in-cassato preferibilmente lasciando moltospazio a destra e a sinistra. Sul retro dell'elemento SmartLine deveessere rispettata la distanza minima in-dicata in basso rispetto a...
Pagina 39 - Distanza di sicurezza dal rivestimento della nicchia
Installazione *INSTALLATION* 39 Distanza di sicurezza dal rivestimento della nicchia Se si applica un rivestimento sulla nicchia occorre rispettare una distanza minimatra l'intaglio del piano di lavoro e il rivestimento poiché le temperature elevate pos-sono modificare o danneggiare i materiali. Se ...
Pagina 40 - Piano di lavoro in piastrelle
Installazione *INSTALLATION* 40 Indicazioni relative al montag-gio – cornice rialzata Guarnizione tra elemento SmartLinee piano di lavoro Elemento SmartLine e piano di lavo-ro possono danneggiarsi in caso dismontaggio dell'elemento, se vieneapplicato del materiale isolante per lefessure.Non utilizza...
Pagina 43 - Montaggio con aspiratore per piano cottura
Installazione *INSTALLATION* 43 Montaggio con aspiratore per piano cottura Combinazioni Numero x larghezza [mm] Misura B [mm] Elementi di cottura Aspiratore per piano cottura 1 x 378 1 x 120 481 2 x 378 1 x 120 862 1 x 3781 x 620 2 x 120 1226 3 x 378 2 x 120 1365 2 x 3781 x 620 2 x 120 1607 4 x 378 ...
Pagina 44 - Montaggio senza aspiratore per piano cottura
Installazione *INSTALLATION* 44 Montaggio senza aspiratore per piano cottura Combinazioni Numero x larghezza [mm] Misura B [mm] Elementi di cottura 1 x 378 359 2 x 378 740 1 x 3781 x 620 982 3 x 378 1121 2 x 3781 x 620 1363 4 x 378 1502 2 x 3781 x 800 1554 2 x 3781 x 936 1680
Pagina 45 - Listelli di copertura – cornice rialzata; Montaggio di 3 elementi e 2 listelli di copertura
Installazione *INSTALLATION* 45 Listelli di copertura – cornice rialzata Se si montano più elettrodomestici, è necessario applicare dei listelli intermedi tradi loro. Sono necessarie le graffe fornite solo per l'incasso di un CSDA 700x FL. Montaggio di 3 elementi e 2 listelli di copertura
Pagina 46 - Misure d'incasso – rialzato; Tutte le misure sono indicate in mm.
Installazione *INSTALLATION* 46 Misure d'incasso – rialzato Tutte le misure sono indicate in mm. a Parte anteriore b Allacciamento alla rete elettrica con cavo di alimentazioneCavo di alimentazione elettrica L = 2.000 mm c Allacciamento gas R ½ " ISO 7-1 (DIN EN 10226)
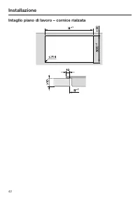
Pagina 47 - Incasso – cornice rialzata; Predisporre il piano di lavoro
Installazione *INSTALLATION* 47 Incasso – cornice rialzata Predisporre il piano di lavoro Praticare l'intaglio nel piano di lavoro.Rispettare le distanze di sicurezza (v.cap. “Installazione”, par. “Distanze disicurezza”). Sigillare le superfici di intaglio dei piani di lavoro in legno con lacca ...
Pagina 48 - Incassare l'elemento SmartLine
Installazione *INSTALLATION* 48 Incassare l'elemento SmartLine Incollare il nastro di guarnizione sottoil bordo dell'elemento SmartLine. Nonapplicare il nastro di guarnizione sot-to tensione. Far passare il cavo di alimentazioneverso il basso attraverso l'intaglio nelpiano di lavoro. Appoggiar...
Pagina 49 - Piani di lavoro in pietra naturale
Installazione *INSTALLATION* 49 Indicazioni per l'incasso – a filo Un incasso a filo è possibile solo neipiani di lavoro in pietra naturale (grani-to, marmo), legno massello e piastrel-lati. Per piani di lavoro in altri materiali,rivolgersi al produttore per verificarese sono adatti all'incasso di u...
Pagina 51 - Intaglio piano di lavoro – a filo; Piano di lavoro in pietra naturale
Installazione *INSTALLATION* 51 Intaglio piano di lavoro – a filo B 0 50 A 524 50 0 + 1 + 1 ß R 4 B A 0 2 12 0 1 0 5,5 + 0,5 * / 7 + 0,5 0 2 12 0 1 0 5,5 + 0,5 * / 7 + 0,5 + 1 + 1 + 1 + 1 B A + 1 + 1 Piano di lavoro in pietra naturale Piano di lavoro in legno * 7 + 0,5 mm per CS 7611 FL
Pagina 54 - Listelli intermedi – a filo
Installazione *INSTALLATION* 54 Listelli intermedi – a filo Se si montano più elettrodomestici, è necessario applicare dei listelli intermedi tradi loro. Sono necessarie le graffe fornite solo per l'incasso di un CSDA 700x FL. Montaggio di 3 elementi e 2 listelli di copertura
Pagina 56 - Incasso – a filo
Installazione *INSTALLATION* 56 Incasso – a filo Predisporre il piano di lavoro Praticare l'intaglio nel piano di lavoro.Rispettare le distanze di sicurezza (v.cap. “Installazione”, par. “Distanze disicurezza”). Sigillare le superfici di intaglio dei piani di lavoro in legno con lacca speciale, ...
Pagina 58 - Allacciamento gas; Pericolo di esplosione a causa di
Installazione *INSTALLATION* 58 Allacciamento gas Pericolo di esplosione a causa di un allacciamento del gas non corret-to.Se l'allacciamento del gas non è sta-to realizzato in modo corretto, puòfuoriuscire del gas.L'allacciamento al gas può essereeseguito solo da un installatore quali-ficato e au...
Pagina 59 - Categoria secondo EN 30
Installazione *INSTALLATION* 59 Impostare il piano cottura in base allelocali disposizioni del gas. Verificarel'ermeticità dell'allacciamento delgas. Il piano cottura corrisponde alla classeapparecchi 3 ed è adatto per gas natu-rale e gas liquido. Categoria secondo EN 30 Italia II2H3+ 20, 28–30/37 m...
Pagina 61 - Allacciamento elettrico; Pericolo di incendio in caso di
Installazione *INSTALLATION* 61 Allacciamento elettrico L'elemento SmartLine viene fornitopronto per essere allacciato alla reteelettrica tramite cavo e presa di sicurez-za (Schuko). Posizionate l'elemento SmartLine inmodo che la presa sia liberamente ac-cessibile. Se la presa non fosse acces-sibile...
Pagina 62 - Tabella ugelli
Commutazione su un altro tipo di gas *INSTALLATION* 62 Pericolo di esplosione a causa di una modifica impropria.Se la modifica del tipo di gas non èstata eseguita in modo corretto, po-trebbe fuoriuscire del gas.La modifica a un altro tipo di gas puòessere eseguita solo da un installato-re qualific...
Pagina 63 - Sostituzione ugelli principali
Commutazione su un altro tipo di gas *INSTALLATION* 63 Sostituzione ugelli principali Rimuovere il coprispartifiamma e la testa del bruciatore . Svitare gli ugelli principali con una chiave a tubo (M7). Montare l'ugello adatto come indicatonella tabella e stringerlo. Fissare gli ugell...
Pagina 64 - - In posizione “fiamma alta” la fiamma
Commutazione su un altro tipo di gas *INSTALLATION* 64 Con l'aiuto di un piccolo cacciavitesvitare i due ugelli del minimo dal valvolame. Estrarre gli ugelli con una pinza apunta. Montare l'ugello adatto come indicatonella tabella e stringerlo. Fissare gli ugelli con la ceralacca af-finch...
Pagina 65 - Schede prodotti; Informazioni sui piani cottura a gas a uso domestico
Schede prodotti 65 Le schede prodotti dei modelli descritti nelle presenti istruzioni d'uso sono allegatedi seguito. Informazioni sui piani cottura a gas a uso domestico ai sensi del regolamento (UE) n. 66/2014 MIELE Identificativo del modello CS 7101-1 Numero di bruciatori a gas 1 Efficienza energe...