Pagina 2 - Indice
Indice 2 Indicazioni per la sicurezza e avvertenze ....................................................... 4 Il Vostro contributo alla tutela dell'ambiente .................................................. 14 Panoramica ..................................................................................
Pagina 3 - Schede prodotti
Indice 3 Indicazioni per l'incasso – a filo........................................................................... 52Intaglio piano di lavoro – a filo............................................................................. 54Listelli intermedi – a filo .........................................
Pagina 4 - Indicazioni per la sicurezza e avvertenze
Indicazioni per la sicurezza e avvertenze 4 L'aspiratore per piano cottura è conforme alle vigenti norme di si-curezza. Un uso improprio può comunque causare danni a perso-ne e/o cose. Leggere attentamente le istruzioni d'uso e di montaggio prima dimettere in funzione l'aspiratore per piano cottura....
Pagina 5 - Uso corretto; Questo aspiratore per piano cottura è destinato esclusivamente
Indicazioni per la sicurezza e avvertenze 5 Uso corretto Questo aspiratore per piano cottura è destinato esclusivamente all'uso domestico e non deve essere utilizzato per scopi diversi daquelli per i quali è stato progettato. Non è destinato all'impiego in ambienti esterni. Utilizzare l'aspira...
Pagina 6 - Bambini; to degli otto anni, in alternativa sorvegliarli costantemente.
Indicazioni per la sicurezza e avvertenze 6 Bambini Tenere lontano dall'aspiratore per piano cottura i bambini al di sot- to degli otto anni, in alternativa sorvegliarli costantemente. I ragazzini più grandi e responsabili (in ogni caso non al di sotto degli otto anni) possono utilizzare l'aspir...
Pagina 7 - Sicurezza tecnica; L'aspiratore per piano cottura può essere montato e messo in fun-
Indicazioni per la sicurezza e avvertenze 7 Sicurezza tecnica Riparazioni o lavori di installazione e di manutenzione non corret- tamente eseguiti possono mettere seriamente in pericolo l'utente.Lavori di installazione e manutenzione nonché riparazioni possonoessere eseguiti solo da personale tecn...
Pagina 10 - Pericolo di intossicazione da gas combusti!
Indicazioni per la sicurezza e avvertenze 10 Contemporaneo funzionamento con un fuoco alimentato da aria ambiente Pericolo di intossicazione da gas combusti! Prestare particolare attenzione se l'aspiratore viene messo in fun-zione mentre nella stessa stanza o abitazione sono attivi fuochiche utili...
Pagina 12 - Impiego corretto
Indicazioni per la sicurezza e avvertenze 12 Impiego corretto Pericolo di incendio a causa di fiamme libere. Non cuocere mai a fiamma libera accanto all'aspiratore per pianocottura. È quindi vietato ad es. cuocere flambé e grigliare su fiammalibera. L'aspiratore acceso per piano cottura aspira le ...
Pagina 13 - Pulizia e manutenzione
Indicazioni per la sicurezza e avvertenze 13 Pulizia e manutenzione Il vapore di un apparecchio a vapore potrebbe infatti giungere alle parti sotto tensione e causare un corto circuito.Per pulire l'aspiratore per piano cottura non utilizzare mai un appa-recchio a vapore. Se la pulizia non avvien...
Pagina 14 - Il Vostro contributo alla tutela dell'ambiente; Smaltimento dell’imballaggio
Il Vostro contributo alla tutela dell'ambiente 14 Smaltimento dell’imballaggio L’imballaggio ha lo scopo di proteggerela merce da eventuali danni di trasporto.I materiali utilizzati per l’imballaggio so-no riciclabili, in quanto selezionati se-condo criteri di rispetto dell’ambiente edi facilità di ...
Pagina 15 - Panoramica; Aspiratore per piano cottura; Griglia di aspirazione
Panoramica 15 Aspiratore per piano cottura a Griglia di aspirazione b Filtro antigrasso c Copertura con unità di comandi d Involucro e Vaschetta di raccolta amovibile f Canale aria(accessori in dotazione) g AspiratoreNello zoccolo sul pavimento h E-Box
Pagina 17 - Accessori in dotazione; Canale aria
Panoramica 17 Accessori in dotazione Si possono ordinare tutti gli accessori indotazione e non, per i dettagli v. cap.“Accessori su richiesta”. Canale aria Sistema a canale piatto per convogliarel'aria dall'involucro fino all'aspiratore.
Pagina 18 - Funzionamento; Funzionamento a ricircolo
Funzionamento 18 Funzionamento a evacuazionearia L'aria aspirata viene purificata attraver-so il filtro antigrasso e convogliataall'esterno. Funzionamento a ricircolo (con kit di modifica DUU 1000(-1)) L'aria aspirata viene purificata attraver-so il filtro antigrasso. Successivamentel'aria viene con...
Pagina 19 - Pulire per la prima volta l'elemento SmartLine
Pulire per la prima volta l'elemento SmartLine 19 Incollare la targhetta dati compresanella documentazione dell'apparec-chio nell'apposito spazio al capitolo“Assistenza tecnica”. Rimuovere eventuali pellicole protetti-ve e adesivi. Passare la superficie in vetroceramicacon un panno umido e asc...
Pagina 20 - Modalità di utilizzo; Booster; Funzionamento supplementare
Modalità di utilizzo 20 Accendere l'aspiratore per pia-no cottura Inserire la griglia di aspirazione Toccare il tasto sensore . I tasti sensore si accendono. Se non segue alcuna ulteriore immis-sione, dopo alcuni secondi l'aspiratoreper piano di cottura si spegne. Impostare / modificare il liv...
Pagina 21 - Consigli per risparmiare energia elettrica; - Cucinare con il livello Cottura basso
Consigli per risparmiare energia elettrica 21 Questo aspiratore per piano cotturafunziona in modo efficace e a risparmiodi energia. Per un uso a risparmio ener-getico usare le seguenti misure: - Aerare bene la cucina durante la cot- tura. Se con il funzionamento a eva-cuazione non circola sufficient...
Pagina 22 - Prodotti non adatti
Pulizia e manutenzione 22 Pericolo di ustionarsi a causa delle superfici molto calde.Al termine del processo di cottura lesuperfici sono molto calde.Spegnere l'aspiratore per piano cot-tura e gli elementi di cottura.Far raffreddare le superfici prima dipulire l'aspiratore. Danni materiali a caus...
Pagina 23 - Danni causati da oggetti appun-; Pulire la vaschetta di raccolta
Pulizia e manutenzione 23 Pulire la superficie in vetroce-ramica Danni causati da oggetti appun- titi.Il nastro di tenuta tra l'elementoSmartLine e il piano di lavoro puòdanneggiarsi.Per la pulizia non utilizzare oggettiappuntiti. Con il detersivo per i piatti non si rie-scono a eliminare tutti i ...
Pagina 24 - Pericolo di incendio a causa del
Pulizia e manutenzione 24 Filtro antigrasso / griglia diaspirazione La griglia di aspirazione e il filtro anti-grasso in metallo riutilizzabile dell'aspi-ratore trattengono le particelle di unto epolvere che si sviluppano durante lacottura, evitando così che l'aspiratoreper piano cottura si sporchi....
Pagina 25 - Inserire il filtro antigrasso; Vano interno involucro
Pulizia e manutenzione 25 Inserire il filtro antigrasso Posizionare il filtro antigrasso in modoche il lato diritto del filtro antigrasso sitrovi sul lato con l'allacciamento delcanale dell'aria. Esempio: raccordo canale di aria a sini-stra Vano interno involucro Una volta smontato il filtro ant...
Pagina 27 - Accessori su richiesta; FlameGuard; Per rimuovere impronte e sporco lieve.
Accessori su richiesta 27 Miele offre un vasto assortimento di ac-cessori e prodotti per la pulizia e la ma-nutenzione adatti all'elettrodomestico indotazione. Questi prodotti possono essere facil-mente ordinati tramite internet al sitowww.miele.it. In alternativa sono reperibili presso ilservizio d...
Pagina 28 - Assistenza tecnica; Contatti in caso di guasto
Assistenza tecnica 28 Contatti in caso di guasto In caso di guasti che non si è in grado di risolvere da soli, contattare il negoziospecializzato Miele o il servizio di assistenza tecnica Miele. È possibile visualizzare i contenuti online dell'assistenza tecnica sottowww.miele.it/elettrodomestico/se...
Pagina 29 - Installazione; Istruzioni di sicurezza per il montaggio; Danni causati da montaggio errato.; Dopo il montaggio dell'elemento SmartLine il cavo di alimentazio-
Installazione *INSTALLATION* 29 Istruzioni di sicurezza per il montaggio Danni causati da montaggio errato. Un montaggio errato può danneggiare l'elemento SmartLine.Far montare l'elemento SmartLine solo da personale qualificato. Danni causati da oggetti caduti. Quando si montano i mobili pensile...
Pagina 31 - Piano di lavoro in piastrelle
Installazione *INSTALLATION* 31 Indicazioni relative al montag-gio – cornice rialzata Guarnizione tra elemento SmartLinee piano di lavoro Elemento SmartLine e piano di lavo-ro possono danneggiarsi in caso dismontaggio dell'elemento, se vieneapplicato del materiale isolante per lefessure.Non utilizza...
Pagina 32 - Profondità piano di lavoro
Installazione *INSTALLATION* 32 Incasso di più elementiSmartLine Nelle fessure tra i singoli elementiSmartLine viene spruzzato del materialeisolante in silicone resistente alle altetemperature (min. 160 °C). Per l'incassoa filo la fessura tra elemento/i SmartLinee piano di lavoro deve essere spruzza...
Pagina 34 - Montaggio con aspiratore per piano cottura
Installazione *INSTALLATION* 34 Montaggio con aspiratore per piano cottura Combinazioni Numero x larghezza [mm] Misura B [mm] Elementi di cottura Aspiratore per piano cottura 1 x 378 1 x 120 481 2 x 378 1 x 120 862 1 x 3781 x 620 2 x 120 1226 3 x 378 2 x 120 1365 2 x 3781 x 620 2 x 120 1607 4 x 378 ...
Pagina 35 - Montaggio senza aspiratore per piano cottura
Installazione *INSTALLATION* 35 Montaggio senza aspiratore per piano cottura Combinazioni Numero x larghezza [mm] Misura B [mm] Elementi di cottura 1 x 378 359 2 x 378 740 1 x 3781 x 620 982 3 x 378 1121 2 x 3781 x 620 1363 4 x 378 1502 2 x 3781 x 800 1554 2 x 3781 x 936 1680
Pagina 36 - Listelli di copertura – cornice rialzata; Montaggio di 3 elementi e 2 listelli di copertura
Installazione *INSTALLATION* 36 Listelli di copertura – cornice rialzata Se si montano più elettrodomestici, è necessario applicare dei listelli intermedi tradi loro. Sono necessarie le graffe fornite solo per l'incasso di un CSDA 700x FL. Montaggio di 3 elementi e 2 listelli di copertura Listelli d...
Pagina 37 - Misure d'incasso – rialzato; Tutte le misure sono indicate in mm.
Installazione *INSTALLATION* 37 Misure d'incasso – rialzato Tutte le misure sono indicate in mm. a Parte anteriore b AspiratoreNello zoccolo sul pavimento c Canale aria(accessori in dotazione) d E-Box
Pagina 44 - Vista frontale - allacciamento canale aria a sinistra
Installazione *INSTALLATION* 44 Se si desidera montare il canale dell'aria a sinistra dell'aspiratore, la profonditàdel piano di lavoro deve essere di almeno 665 mm. Vista frontale - allacciamento canale aria a sinistra Vista dall'alto - allacciamento canale aria a sinistra
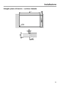
Pagina 45 - Incasso – cornice rialzata; Piano di lavoro
Installazione *INSTALLATION* 45 Incasso – cornice rialzata Se lo spessore del piano di lavoro èsuperiore a 24 mm, intagliare il pianodi lavoro sul lato d'incasso (a destra oa sinistra) sul lato inferiore. a Piano di lavoro b max. 24 mm c 12 mm Fissare l'angolare Fissare 1 angolare (allegato al liste...
Pagina 46 - Predisporre il piano di lavoro
Installazione *INSTALLATION* 46 Predisporre il piano di lavoro Praticare l'intaglio nel piano di lavoro.Rispettare le distanze di sicurezza (v.cap. “Installazione”, par. “Distanze disicurezza”). Sigillare le superfici di intaglio dei piani di lavoro in legno con lacca speciale, caucciù siliconat...
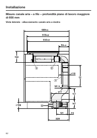
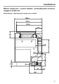
Pagina 47 - Raccordo canale di aria a destra
Installazione *INSTALLATION* 47 Montare l'aspiratore per piano cottu-ra L'aspiratore per piano cottura può esse-re montato a scelta con il raccordo peril canale di aria a destra o a sinistra. a Raccordo canale di aria a destra b Raccordo canale di aria a sinistra Incollare il nastro di guarnizione...
Pagina 48 - Montare il canale dell'aria
Installazione *INSTALLATION* 48 Montare il canale dell'aria Montare il canale dell'aria. Incollare il nastro adesivo fornito sulbocchettone di sfiato se il condotto disfiato non poggia ermeticamente sulbocchettone. Tenere conto che il canale dell'aria do-po l'incasso non è sotto tensionemeccanic...
Pagina 49 - Montare il motore dell'aspiratore
Installazione *INSTALLATION* 49 Compensazione in lunghezza - pro-fondità del piano di lavoro superiorea 600 mm Dividere il canale piatto in 2 pezzi. 1pezzo deve corrispondere alla diffe-renza tra 600 mm e la profondità delpiano di lavoro. Infilare il pezzo del canale nel go- mito orizzontale. ...
Pagina 50 - Cavo di alimentazione
Installazione *INSTALLATION* 50 E-Box a Cavo di alimentazione b Allacciamento contatto finestra c Boccola di allacciamento cavo ten-sione a carico aspiratore d Boccola di allacciamento cavo elet-tronica aspiratore e Boccola di allacciamento cavo unitàdi comando Allacciamento al contatto finestra, se...
Pagina 51 - Svitare la vite
Installazione *INSTALLATION* 51 Allentare il nasello di arresto edestrarre la spina. Svitare la vite del dispositivo fer- macavo e sbloccare l'involucro suidue lati . Aprire l'involucro. Togliere i tappi. Sostituire il ponte con un cavo di alimentazione del sistema di attiva-zione. ...
Pagina 52 - Piani di lavoro in pietra naturale
Installazione *INSTALLATION* 52 Indicazioni per l'incasso – a filo Un incasso a filo è possibile solo neipiani di lavoro in pietra naturale (grani-to, marmo), legno massello e piastrel-lati. Per piani di lavoro in altri materiali,rivolgersi al produttore per verificarese sono adatti all'incasso di u...
Pagina 54 - Intaglio piano di lavoro – a filo; Piano di lavoro in pietra naturale
Installazione *INSTALLATION* 54 Intaglio piano di lavoro – a filo B 0 50 A 524 50 0 + 1 + 1 ß R 4 B A 0 2 12 0 1 0 5,5 + 0,5 * / 7 + 0,5 0 2 12 0 1 0 5,5 + 0,5 * / 7 + 0,5 + 1 + 1 + 1 + 1 B A + 1 + 1 Piano di lavoro in pietra naturale Piano di lavoro in legno * 7 + 0,5 mm per CS 7611 FL
Pagina 57 - Listelli intermedi – a filo; Listelli intermedi aspiratore per piano cottura – a filo; Ganci
Installazione *INSTALLATION* 57 Listelli intermedi – a filo Se si montano più elettrodomestici, è necessario applicare dei listelli intermedi tradi loro. Sono necessarie le graffe fornite solo per l'incasso di un CSDA 700x FL. Montaggio di 3 elementi e 2 listelli di copertura Listelli intermedi aspi...
Pagina 66 - Incasso – a filo
Installazione *INSTALLATION* 66 Incasso – a filo Se lo spessore del piano di lavoro èsuperiore a 28 mm, intagliare il pianodi lavoro sul lato d'incasso (a destra oa sinistra) sul lato inferiore. a Piano di lavoro b max. 24 mm c 12 mm Fissare l'angolare Fissare 1 angolare (allegato al listello in-ter...
Pagina 73 - Se l'aspiratore deve funzionare in
Installazione *INSTALLATION* 73 Conduttura di evacuazionedell'aria Se l'aspiratore deve funzionare in presenza di fuochi alimentati con ariaambiente, a determinate condizionipuò sussistere il pericolo di intossi-cazione!Leggere attentamente il capitolo“Istruzioni per la sicurezza e avver-tenze”.In...
Pagina 74 - Allacciamento elettrico; Pericolo di incendio in caso di
Installazione *INSTALLATION* 74 Allacciamento elettrico L'elemento SmartLine viene fornitopronto per essere allacciato alla reteelettrica tramite cavo e presa di sicurez-za (Schuko). Posizionate l'elemento SmartLine inmodo che la presa sia liberamente ac-cessibile. Se la presa non fosse acces-sibile...
Pagina 75 - Scheda per cappe aspiranti
Schede prodotti 75 Le schede prodotti dei modelli descritti nelle presenti istruzioni d'uso sono allegatedi seguito. Scheda per cappe aspiranti ai sensi del regolamento delegato (UE) n. 65/2014 e del regolamento (UE) n.66/2014 MIELE Identificativo del modello CSDA 7001 FL Consumo annuo di energia (A...