Pagina 2 - Indice
Indice 2 Indicazioni per la sicurezza e avvertenze ....................................................... 4 Il Vostro contributo alla tutela dell'ambiente .................................................. 14 Panoramica ..................................................................................
Pagina 3 - Pulizia e manutenzione
Indice 3 Pulizia e manutenzione ..................................................................................... 36 Pulire il pannello comandi ................................................................................... 37Pulire la superficie di cottura .....................................
Pagina 4 - Indicazioni per la sicurezza e avvertenze
Indicazioni per la sicurezza e avvertenze 4 Il Teppan Yaki è conforme alle vigenti norme di sicurezza. Un usoimproprio può comunque causare danni a persone e/o cose. Leggere attentamente le istruzioni d'uso e di montaggio prima dimettere in funzione il Teppan Yaki. Contengono informazioni im-portant...
Pagina 5 - Uso corretto; Questo Teppan Yaki è destinato esclusivamente all'uso domesti-
Indicazioni per la sicurezza e avvertenze 5 Uso corretto Questo Teppan Yaki è destinato esclusivamente all'uso domesti- co. Non è destinato all'impiego in ambienti esterni. Esso è destinato esclusivamente all'uso in ambito domestico per preparare e tenere in caldo le pietanze. Qualsiasi altro ...
Pagina 6 - Bambini
Indicazioni per la sicurezza e avvertenze 6 Bambini Tenere lontano dal Teppan Yaki i bambini al di sotto degli otto an- ni, in alternativa sorvegliarli costantemente. I ragazzini più grandi e responsabili (in ogni caso non al di sotto degli otto anni) possono utilizzare il Teppan Yaki senza sorv...
Pagina 7 - Sicurezza tecnica; Una piastra danneggiata può essere pericolosa per la sicurezza.
Indicazioni per la sicurezza e avvertenze 7 Sicurezza tecnica Riparazioni o lavori di installazione e di manutenzione non corret- tamente eseguiti possono mettere seriamente in pericolo l'utente.Lavori di installazione e manutenzione nonché riparazioni possonoessere eseguiti solo da personale tecn...
Pagina 9 - Se la piastra è stata incassata dietro un frontale del mobile (p.es.
Indicazioni per la sicurezza e avvertenze 9 Se la piastra è stata incassata dietro un frontale del mobile (p.es. un'anta), non chiudere mai quest'ultimo mentre il Teppan Yaki è infunzione. Dietro il frontale del mobile chiuso si formano calore e umi-dità. Si possono danneggiare la piastra, il mobi...
Pagina 10 - Impiego corretto; Il Teppan Yaki in funzione diventa molto caldo e rimane caldo an-
Indicazioni per la sicurezza e avvertenze 10 Impiego corretto Il Teppan Yaki in funzione diventa molto caldo e rimane caldo an- che per un certo tempo dopo averlo spento. Solo quando le spie delcalore residuo si sono spente, non sussiste più pericolo di bruciarsi. Oggetti nelle immediate vicinan...
Pagina 11 - Se l'apparecchio è acceso, viene acceso inavvertitamente oppure
Indicazioni per la sicurezza e avvertenze 11 Se l'apparecchio è acceso, viene acceso inavvertitamente oppure se è presente del calore residuo, gli oggetti metallici appoggiati sulTeppan Yaki si riscaldano. Gli altri materiali possono fondersi o inizia-re a bruciare. Non utilizzare il Teppan Yaki c...
Pagina 12 - Il Teppan Yaki è dotato di una ventola di raffreddamento. Se sotto
Indicazioni per la sicurezza e avvertenze 12 Oggetti metallici, conservati in un cassetto posto sotto il Teppan Yaki, possono diventare molto caldi se la piastra viene usata in ma-niera intensa e prolungata. Non conservare oggetti metallici in uncassetto situato direttamente sotto la piastra. Il...
Pagina 13 - Se la piastra viene incassata sopra un forno oppure una cucina
Indicazioni per la sicurezza e avvertenze 13 Pulizia e manutenzione Il vapore di un apparecchio a vapore potrebbe infatti giungere alle parti sotto tensione e causare un corto circuito.Per la pulizia del Teppan Yaki non utilizzare mai un apparecchio a va-pore. Se la piastra viene incassata sopra...
Pagina 14 - Il Vostro contributo alla tutela dell'ambiente; Smaltimento dell’imballaggio
Il Vostro contributo alla tutela dell'ambiente 14 Smaltimento dell’imballaggio L’imballaggio ha lo scopo di proteggerela merce da eventuali danni di trasporto.I materiali utilizzati per l’imballaggio so-no riciclabili, in quanto selezionati se-condo criteri di rispetto dell’ambiente edi facilità di ...
Pagina 16 - Comandi e spie; Tasti sensore
Panoramica 16 Comandi e spie Tasti sensore a Elemento SmartLine On/Off b Stop&GoPer fermare/avviare un processo di cottura in corso c Protezione per la puliziaPer bloccare i tasti sensore d Resistenza elettricaPer collegare/separare manualmente le resistenze e Tenere in caldoPer attivare/disatti...
Pagina 18 - Funzionamento; Pericolo di ustionarsi a causa di
Funzionamento 18 La superficie di cottura è riscaldata coninduzione. Sotto la superficie di cotturaè situata una bobina a induzione. Se siaccende il Teppan Yaki, questa bobinagenera un campo magnetico che agiscedirettamente sulla superficie di cottura ela riscalda. Pericolo di ustionarsi a causa d...
Pagina 19 - Al primo avvio
Al primo avvio 19 Incollare la targhetta dati compresanella documentazione dell'apparec-chio nell'apposito spazio al capitolo“Assistenza tecnica”. Rimuovere eventuali pellicole protetti-ve e adesivi. Pulire per la prima volta l'ele-mento SmartLine Pulire tutte le superfici con un pannoumido e ...
Pagina 20 - Modalità di utilizzo; Impostazioni; deve essere premuto un po' più a
Modalità di utilizzo 20 Impostazioni L'elemento SmartLine è dotato di sen-sori elettronici che reagiscono se sisfiorano col dito. Il tasto sensore On/Off deve essere premuto un po' più a lungo per motivi di sicurezza al momen-to dell'accensione rispetto agli altri ta-sti.Ogni reazione dei tasti se...
Pagina 21 - Pericolo di incendio a causa di; Accendere il Teppan Yaki; Toccare il tasto sensore; Impostare il livello di potenza; sulla rispettiva; Indicazione calore residuo; Pericolo di ustionarsi a causa
Modalità di utilizzo 21 Pericolo di incendio a causa di alimenti surriscaldati.Gli alimenti non sorvegliati possonosurriscaldarsi e prendere fuoco.Sorvegliare sempre il Teppan Yakiquando è in funzione. Considerare che il tempo di riscalda-mento con l'induzione è sempre mol-to breve. Accendere il T...
Pagina 22 - Collegare le resistenze
Modalità di utilizzo 22 Impostare il livello di potenza -ampliamento area d'imposta-zione Di serie sono impostate 9 livelli di po-tenza. Se si desidera una gradazionepiù dettagliata è possibile passare a17 livelli di potenza (v. capitolo “Pro-grammazione”). Toccare la scala numerica tra i tastisen...
Pagina 23 - Suggerimenti per la cottura
Modalità di utilizzo 23 Suggerimenti per la cottura Prima di ogni uso, pulire il TeppanYaki con un panno umido per rimuo-vere polvere o altri residui. - Preriscaldare la piastra sostanzial- mente per 2-3 minuti. Impostare il li-vello di potenza che servirà poi per lacottura. - Il Teppan Yaki deve es...
Pagina 24 - Aree di regolazione
Aree di regolazione 24 Il piano cottura di serie è programmato con 9 livelli di potenza. Se si desidera unagradazione più dettagliata è possibile passare a 17 livelli di potenza (v. capitolo"Programmazione"). Area di regolazione di serie (9 livelli) ampliato (17 livelli) Tenere in caldo piet...
Pagina 25 - Timer; Impostare il timer
Timer 25 L'elemento Smart Line deve essereacceso per poter utilizzare il timer. Il timer ha 2 funzioni: - per impostare una durata breve - per lo spegnimento automatico di una zona cottura/di una resistenza/diun'area Teppan Le funzioni possono essere utilizzatecontemporaneamente. È possibile imposta...
Pagina 26 - Spegnimento automatico; Impostare il tempo di spegnimento
Timer 26 Spegnimento automatico È possibile impostare una durata al ter-mine della quale resistenza/area Teppansi spegne in automatico. La funzionepuò essere utilizzata contemporanea-mente per tutte le zone cottura. La resistenza/l'area Teppan vienespenta dalla funzione di spegnimentoautomatico se l...
Pagina 28 - Funzioni supplementari; Attivazione/disattivazione; Recall
Funzioni supplementari 28 Stop&Go Con l'attivazione di Stop&Go si riduce a1 il livello di potenza impostato.I livelli di potenza e l'impostazione deltimer non possono essere modificati; èpossibile solo spegnere l'elementoSmartLine. Il timer e i tempi di spegni-mento scorrono di nuovo. Con la...
Pagina 29 - Protezione per la pulizia; Attivazione; Modalità demo; Attivare/disattivare la modalità demo
Funzioni supplementari 29 Protezione per la pulizia È possibile bloccare i tasti sensoredell'elemento SmartLine per 20 se-condi per rimuovere p.es. lo sporco. Iltasto sensore non viene bloccato. Attivazione Toccare il tasto sensore . Sul display del timer il tempo scorre aritroso. Disattivazio...
Pagina 30 - Dispositivi di sicurezza
Dispositivi di sicurezza 30 Blocco accensione/Blocco co-mandi Il blocco comandi si disattiva in casodi interruzione della corrente elettri-ca. L’apparecchio è dotato di un blocco ac-censione e un blocco comandi. In que-sto modo l'elemento non può essereacceso; inoltre non è nemmeno possibi-le modifi...
Pagina 31 - Spegnimento di sicurezza; I tasti sensore sono coperti
Dispositivi di sicurezza 31 Spegnimento di sicurezza I tasti sensore sono coperti Se uno o più tasti sensore rimangonocoperti per più di 10 secondi, p.es. percontatto, a causa del trabocco dellepietanze o di oggetti appoggiati, l'ele-mento SmartLine si spegne automatica-mente. Tramite il tasto senso...
Pagina 32 - Bobine a induzione
Dispositivi di sicurezza 32 Dispositivo antisurriscalda-mento Tutte le bobine di induzione e il dissipa-tore di calore dell'elettronica sono ri-spettivamente dotati di un dispositivoantisurriscaldamento. Prima che le bo-bine di induzione e/o il dissipatore dicalore possano surriscaldarsi, il disposi...
Pagina 33 - Programmazione; Modificare la programmazione
Programmazione 33 È possibile adattare la programmazionedell'elemento SmartLine alle proprieesigenze. Si possono modificare diver-se impostazioni in sequenza. Dopo aver visualizzato la programma-zione compare il simbolo e sul di- splay timer . Dopo alcuni secondi lampeggiano sul display del tim...
Pagina 36 - Prodotti non adatti
Pulizia e manutenzione 36 Pericolo di ustionarsi a causa delle superfici molto calde.Al termine del processo di cottura lesuperfici sono molto calde.Spegnere il Teppan Yaki.Far raffreddare le superfici prima dipulire la piastra. Danni materiali a causa dell'umi- dità penetrata.Il vapore di un ap...
Pagina 37 - Pulire il pannello comandi
Pulizia e manutenzione 37 Pulire il pannello comandi Eliminare lo sporco più grosso con unpanno umido; per macchie di sporcopiù ostinato utilizzare l'apposito ra-schietto. Pulire infine accuratamente il pannellocomandi con lo speciale detergenteper vetroceramica e acciaio inossida-bile Miele (v....
Pagina 38 - Segnalazioni sulle spie/sul display
Cosa fare se... 38 La maggior parte dei guasti che si verificano durante l'uso quotidiano dell'appa-recchio può essere eliminata personalmente, senza difficoltà. In molti casi è possi-bile risparmiare tempo e costi senza doversi necessariamente rivolgere all'assi-stenza tecnica. Le tabelle che seguo...
Pagina 40 - Comportamento inaspettato; Problema
Cosa fare se... 40 Comportamento inaspettato Problema Causa e rimedio I tasti sensore reagisco-no in modo eccessiva-mente sensibile oppurenon reagiscono. La sensibilità dei tasti sensore si è modificata. Accertarsi innanzitutto che l'elemento SmartLinenon venga raggiunto da luce diretta (artificia...
Pagina 41 - Problemi generali o guasti tecnici
Cosa fare se... 41 Problemi generali o guasti tecnici Problema Causa e rimedio L'elemento SmartLinenon si accende. L'elemento SmartLine non riceve corrente. Verificare se è scattato l'interruttore principale del-l'impianto elettrico. Eventualmente contattare unelettricista qualificato o il servizi...
Pagina 42 - Accessori su richiesta; Panno in microfibra; Per rimuovere impronte e sporco lieve.
Accessori su richiesta 42 Miele offre un vasto assortimento di ac-cessori e prodotti per la pulizia e la ma-nutenzione adatti all'elettrodomestico indotazione. Questi prodotti possono essere facil-mente ordinati tramite internet al sitowww.miele.it. In alternativa sono reperibili presso ilservizio d...
Pagina 43 - Assistenza tecnica; Contatti in caso di guasto
Assistenza tecnica 43 Contatti in caso di guasto In caso di guasti che non si è in grado di risolvere da soli, contattare il negoziospecializzato Miele o il servizio di assistenza tecnica Miele. È possibile visualizzare i contenuti online dell'assistenza tecnica sottowww.miele.it/elettrodomestico/se...
Pagina 44 - Installazione; Istruzioni di sicurezza per il montaggio; Danni causati da montaggio errato.; Le impiallacciature del piano di lavoro devono essere applicate
Installazione *INSTALLATION* 44 Istruzioni di sicurezza per il montaggio Danni causati da montaggio errato. Un montaggio errato può danneggiare l'elemento SmartLine.Far montare l'elemento SmartLine solo da personale qualificato. Pericolo di scossa elettrica a causa della tensione di rete. Un all...
Pagina 45 - Distanze di sicurezza
Installazione *INSTALLATION* 45 Distanze di sicurezza Distanza di sicurezza sopra l'elemen-to SmartLine Tra l'elemento SmartLine e una cappaaspirante posta al di sopra dell’appa-recchio è necessario mantenere la di-stanza di sicurezza indicata dalla casaproduttrice. Se sopra l'apparecchio fossero in...
Pagina 46 - dietro
Installazione *INSTALLATION* 46 Distanza di sicurezza verso i lati / laparete posteriore L'elemento SmartLine deve essere in-cassato preferibilmente lasciando moltospazio a destra e a sinistra. Sul retro dell'elemento SmartLine deveessere rispettata la distanza minima in-dicata in basso rispetto a...
Pagina 47 - mm
Installazione *INSTALLATION* 47 Distanza minima sotto l'elementoSmartLine Per garantire la corretta aerazionedell'elemento SmartLine, sotto il pianocottura è necessario mantenere una di-stanza minima verso un forno, un ripia-no intermedio o un cassetto. La distanza minima dal bordo inferioredell'ele...
Pagina 48 - Distanza di sicurezza dal rivestimento della nicchia
Installazione *INSTALLATION* 48 Distanza di sicurezza dal rivestimento della nicchia Se si applica un rivestimento sulla nicchia occorre rispettare una distanza minimatra l'intaglio del piano di lavoro e il rivestimento poiché le temperature elevate pos-sono modificare o danneggiare i materiali. Se ...
Pagina 49 - Piano di lavoro in piastrelle
Installazione *INSTALLATION* 49 Indicazioni relative al montag-gio – cornice rialzata Guarnizione tra elemento SmartLinee piano di lavoro Elemento SmartLine e piano di lavo-ro possono danneggiarsi in caso dismontaggio dell'elemento, se vieneapplicato del materiale isolante per lefessure.Non utilizza...
Pagina 52 - Montaggio con aspiratore per piano cottura
Installazione *INSTALLATION* 52 Montaggio con aspiratore per piano cottura Combinazioni Numero x larghezza [mm] Misura B [mm] Elementi di cottura Aspiratore per piano cottura 1 x 378 1 x 120 481 2 x 378 1 x 120 862 1 x 3781 x 620 2 x 120 1226 3 x 378 2 x 120 1365 2 x 3781 x 620 2 x 120 1607 4 x 378 ...
Pagina 53 - Montaggio senza aspiratore per piano cottura
Installazione *INSTALLATION* 53 Montaggio senza aspiratore per piano cottura Combinazioni Numero x larghezza [mm] Misura B [mm] Elementi di cottura 1 x 378 359 2 x 378 740 1 x 3781 x 620 982 3 x 378 1121 2 x 3781 x 620 1363 4 x 378 1502 2 x 3781 x 800 1554 2 x 3781 x 936 1680
Pagina 54 - Listelli di copertura – cornice rialzata; Montaggio di 3 elementi e 2 listelli di copertura
Installazione *INSTALLATION* 54 Listelli di copertura – cornice rialzata Se si montano più elettrodomestici, è necessario applicare dei listelli intermedi tradi loro. Sono necessarie le graffe fornite solo per l'incasso di un CSDA 700x FL. Montaggio di 3 elementi e 2 listelli di copertura
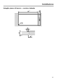
Pagina 56 - Incasso – cornice rialzata; Predisporre il piano di lavoro
Installazione *INSTALLATION* 56 Incasso – cornice rialzata Predisporre il piano di lavoro Praticare l'intaglio nel piano di lavoro.Rispettare le distanze di sicurezza (v.cap. “Installazione”, par. “Distanze disicurezza”). Sigillare le superfici di intaglio dei piani di lavoro in legno con lacca ...
Pagina 57 - Incassare l'elemento SmartLine
Installazione *INSTALLATION* 57 Incassare l'elemento SmartLine Incollare il nastro di guarnizione sottoil bordo dell'elemento SmartLine. Nonapplicare il nastro di guarnizione sot-to tensione. Far passare il cavo di alimentazioneverso il basso attraverso l'intaglio nelpiano di lavoro. Appoggiar...
Pagina 58 - Piani di lavoro in pietra naturale
Installazione *INSTALLATION* 58 Indicazioni per l'incasso – a filo Un incasso a filo è possibile solo neipiani di lavoro in pietra naturale (grani-to, marmo), legno massello e piastrel-lati. Per piani di lavoro in altri materiali,rivolgersi al produttore per verificarese sono adatti all'incasso di u...
Pagina 60 - Intaglio piano di lavoro – a filo; Piano di lavoro in pietra naturale
Installazione *INSTALLATION* 60 Intaglio piano di lavoro – a filo B 0 50 A 524 50 0 + 1 + 1 ß R 4 B A 0 2 12 0 1 0 5,5 + 0,5 * / 7 + 0,5 0 2 12 0 1 0 5,5 + 0,5 * / 7 + 0,5 + 1 + 1 + 1 + 1 B A + 1 + 1 Piano di lavoro in pietra naturale Piano di lavoro in legno * 7 + 0,5 mm per CS 7611 FL
Pagina 63 - Listelli intermedi – a filo
Installazione *INSTALLATION* 63 Listelli intermedi – a filo Se si montano più elettrodomestici, è necessario applicare dei listelli intermedi tradi loro. Sono necessarie le graffe fornite solo per l'incasso di un CSDA 700x FL. Montaggio di 3 elementi e 2 listelli di copertura
Pagina 65 - Incasso – a filo
Installazione *INSTALLATION* 65 Incasso – a filo Predisporre il piano di lavoro Praticare l'intaglio nel piano di lavoro.Rispettare le distanze di sicurezza (v.cap. “Installazione”, par. “Distanze disicurezza”). Sigillare le superfici di intaglio dei piani di lavoro in legno con lacca speciale, ...
Pagina 67 - Allacciamento elettrico; Danni causati da allacciamento
Installazione *INSTALLATION* 67 Allacciamento elettrico Danni causati da allacciamento errato.Riparazioni o lavori di installazione edi manutenzione non correttamenteeseguiti possono mettere seriamentein pericolo l'utente.Miele rende noto che non si assumealcuna responsabilità per danni diret-ti o...
Pagina 68 - Pericolo di scossa elettrica a
Installazione *INSTALLATION* 68 Staccare l’apparecchio dalla reteelettrica Pericolo di scossa elettrica a causa della tensione di rete.Nel corso di lavori di riparazione e/omanutenzione una riattivazione dellatensione di rete può causare un cortocircuito.Dopo il distacco accertarsi che nonci possa...