Fulgor Milano FQHI 1200 X - Manuale d'uso
 
                
                                    Cappa da cucina Fulgor Milano FQHI 1200 X – Manuale d'uso, leggi gratuitamente online in formato PDF. Speriamo che questo ti aiuti a risolvere eventuali dubbi. Se hai ulteriori domande, contattaci tramite il modulo di contatto.
Indice:
- Pagina 2 – DICHIARAZIONE DEL PRODUTTORE; SMALTIMENTO DEGLI APPARECCHI USATI
- Pagina 4 – ISTRUZIONI PER L’USO, MANUTENZIONE E INSTALLAZIONE DELLA CAPPA.; ATTENZIONE; AVVERTENZE
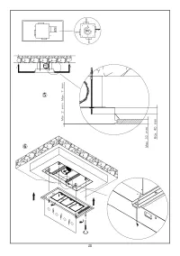
- Pagina 5 – ISTRUZIONI DI MONTAGGIO; idonei per il tipo di parete in cui deve essere fissata la cappa.; ALLACCIAMENTO ELETTRICO
- Pagina 6 – COMANDI
- Pagina 7 – USO E MANUTENZIONE
SHC 9011 RC X
SHC 12011 RC X
CHB 6012 RC X 
CHB 9012 RC X 
FLH 800 TC BK 
FLH 800 TC WH
FQH 900 X
FQH 1200 X
FCH 600 X
FQHI 900 X
FQHI 1200 X
FCHI 900 X
FQLHI 600 BK
FQLHI 600 WH
"Caricamento dell'istruzione" significa che è necessario attendere finché il file non è caricato e pronto per la lettura online. Alcune istruzioni sono molto grandi e il tempo di caricamento dipende dalla velocità della tua connessione a Internet.
Sommario
DICHIARAZIONE DEL PRODUTTORE Con la presente il produttore dichiara che i prodotti da Voi acquistati rispondono, a secondo delle tipologie, ai requisiti fondamentali richiesti dalle Direttive Europee qui sotto riportate: - Direttiva Bassa Tensione 73/23/EEC - Direttiva di Compatibilità Elettromagnet...
IT - 1 ISTRUZIONI PER L’USO, MANUTENZIONE E INSTALLAZIONE DELLA CAPPA. ATTENZIONE : La cappa deve essere installata unicamente da personale abilitato. Si declina ogni responsabilità in merito ad installazioni eseguite da persone prive di abilitazione. Prima di procedere con l'installazione della cap...
IT - 2 Nel funzionamento aspirante cioè con l'espulsione all'esterno dell'aria filtrata, è necessario un adeguato sistema di compensazione secondo le norme vigenti. Il tubo di uscita dei fumi deve avere un diametro uguale o superiore rispet-to a quello del raccordo della cappa. Il locale dove è inst...
 
                     
                     
                     
                     
                     
                     
                     
                     
                     
                     
                     
                     
                     
                     
                     
                     
                     
                     
                     
                     
                     
                     
                     
                     
                     
                     
                     
                     
                     
                     
                     
                                                                         
                                                                         
                                                                         
                                                                         
                                                                         
                                                                         
                                                                         
                                                                         
                                                                        