Fulgor Milano CHB 9012 X - Istruzioni
 
                                Cappa da cucina Fulgor Milano CHB 9012 X - Manuale d'uso in formato PDF online
Istruzioni:
Manuale d'uso Fulgor Milano CHB 9012 X
Sommario
DICHIARAZIONE DEL PRODUTTORE Con la presente il produttore dichiara che i prodotti da Voi acquistati rispondono, a secondo delle tipologie, ai requisiti fondamentali richiesti dalle Direttive Europee qui sotto riportate: - Direttiva Bassa Tensione 73/23/EEC - Direttiva di Compatibilità Elettromagnet...
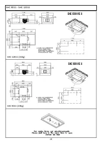
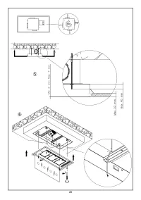
IT - 1 ISTRUZIONI PER L’USO, MANUTENZIONE E INSTALLAZIONE DELLA CAPPA. ATTENZIONE : La cappa deve essere installata unicamente da personale abilitato. Si declina ogni responsabilità in merito ad installazioni eseguite da persone prive di abilitazione. Prima di procedere con l'installazione della cap...
IT - 2 Nel funzionamento aspirante cioè con l'espulsione all'esterno dell'aria filtrata, è necessario un adeguato sistema di compensazione secondo le norme vigenti. Il tubo di uscita dei fumi deve avere un diametro uguale o superiore rispet-to a quello del raccordo della cappa. Il locale dove è inst...
 
                             
                             
                             
                             
                             
                             
                             
                             
                             
                             
                             
                             
                             
                             
                             
                             
                             
                             
                             
                             
                             
                             
                             
                             
                             
                             
                             
                             
                             
                             
                             
                                                                 
                                                                 
                                                                 
                                                                 
                                                                 
                                                                 
                                                                 
                                                                 
                                                                 
                                                                 
                                                                 
                                                                 
                                                                 
                                                                 
                                                                 
                                                                 
                                                                 
                                                                 
                                                                