Fondital WHPS BA 500 SS - Manuale d'uso
 
                
                                    Scaldabagno Fondital WHPS BA 500 SS – Manuale d'uso, leggi gratuitamente online in formato PDF. Speriamo che questo ti aiuti a risolvere eventuali dubbi. Se hai ulteriori domande, contattaci tramite il modulo di contatto.
Indice:
- Pagina 3 – ALIANO
- Pagina 4 – dell’ambiente ed in piena sicurezza per persone animali e/o cose.; DESCRIZIONE DELL’APPARECCHIO
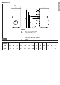
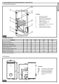
- Pagina 5 – Nomenclatura delle parti; CARATTERISTICHE TECNICHE MODELLO WHPS BA SS; KW
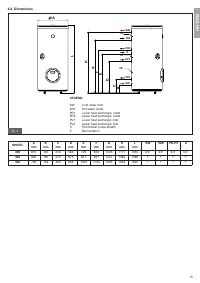
- Pagina 6 – Nomenclatura delle parti; CARATTERISTICHE TECNICHE MODELLO WHPS BA DS
- Pagina 8 – ESEMPI DI IMPIANTO; Gli esempi riportati di seguito sono indicativi.
- Pagina 9 – La temperatura del locale non deve essere inferiore a 5°C.; Allacciamento acqua e operazioni preliminari; ciascun apparecchio riscaldante.; e prevalenza sufficienti e che funzionino regolarmente.
- Pagina 10 – MANUTENZIONE E PULIZIA; Indicazioni generali
MANUALE DI INSTALLAZIONE USO E 
MANUTENZIONE
WHPS BA SS
WHPS BA DS
IST 03 C 340 - 01
IT
GB
RU
INSTALLATION, USE AND 
MAINTENANCE HANDBOOK
ИНСТРУКЦИЯ ПО УСТАНОВКЕ,
ЭКСПЛУАТАЦИИ И ТЕХНИЧЕСКОМУ
ОБСЛУЖИВАНИЮ
"Caricamento dell'istruzione" significa che è necessario attendere finché il file non è caricato e pronto per la lettura online. Alcune istruzioni sono molto grandi e il tempo di caricamento dipende dalla velocità della tua connessione a Internet.
Sommario
3 Signori,ringraziandoVi per la preferenza accordataci nello scegliere e nell’acquistare i nostri prodotti, Vi invitiamo a leggere con atten-zione queste istruzioni concernenti il corretto modo di installazione, d’impiego e di manutenzione dei suddetti apparecchi. INDICE 1. NOTE GENERALI pag. 4 2. D...
4 1. NOTE GENERALI Questo libretto di istruzioni, che costituisce parte integrante ed essenziale del prodotto, dovrà essere consegnato dall’installatore al-l’utente, che dovrà conservarlo con cura per ogni ulteriore consultazione.Questo libretto di istruzioni dovrà sempre accompagnare il prodotto ne...
5 LEGENDA: 1. Entrata acqua fredda 2. Uscita acqua calda 3. Entrata circuito riscaldamento 4. Uscita circuito riscaldamento 5. Attacco ricircolo 6. Attacco sonda termostato 7. Anodo di magnesio 8. Isolamento in poliuretano esente da CFC e HCFC 9. Flangia d’ispezione laterale 10. Flangia d’ispezione ...
 
                     
                     
                     
                     
                     
                     
                     
                     
                     
                     
                     
                     
                                                                        