Fondital WHPS BA 300 SS - Istruzioni
Manuale d'uso Fondital WHPS BA 300 SS
Sommario
3 Signori,ringraziandoVi per la preferenza accordataci nello scegliere e nell’acquistare i nostri prodotti, Vi invitiamo a leggere con atten-zione queste istruzioni concernenti il corretto modo di installazione, d’impiego e di manutenzione dei suddetti apparecchi. INDICE 1. NOTE GENERALI pag. 4 2. D...
4 1. NOTE GENERALI Questo libretto di istruzioni, che costituisce parte integrante ed essenziale del prodotto, dovrà essere consegnato dall’installatore al-l’utente, che dovrà conservarlo con cura per ogni ulteriore consultazione.Questo libretto di istruzioni dovrà sempre accompagnare il prodotto ne...
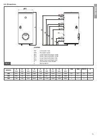
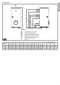
5 LEGENDA: 1. Entrata acqua fredda 2. Uscita acqua calda 3. Entrata circuito riscaldamento 4. Uscita circuito riscaldamento 5. Attacco ricircolo 6. Attacco sonda termostato 7. Anodo di magnesio 8. Isolamento in poliuretano esente da CFC e HCFC 9. Flangia d’ispezione laterale 10. Flangia d’ispezione ...
 
                                 
                             
                             
                             
                             
                             
                             
                             
                             
                             
                             
                            