TESY GCV 804420 - Manuale d'uso
 
                
                                    Scaldabagno TESY GCV 804420 – Manuale d'uso, leggi gratuitamente online in formato PDF. Speriamo che questo ti aiuti a risolvere eventuali dubbi. Se hai ulteriori domande, contattaci tramite il modulo di contatto.
Инструкция за употреба и поддръжка
Instructions for use and maintenance
Инструкция по употреблению обслужванию
Instrucciones de uso y mantenimiento
ELEKTRISCHER WARMWASSER-SPEICHER
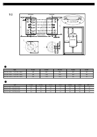
Istruzioni di uso e manutenzione
Instrucțiuni de utilizare și întreinținere
Instrukcja instalacji, użytkowania i obsługi
Uputstvi za upotrebu i održavanje
ВОДОНАГРІВАЧ ПОБУТОВИЙ ЕЛЕКТРИЧНИЙ
Керівництво з установки й експлуатації
Navodila za uporabo in vzdrževanje
Pajogimo, naudojimo irpreti ros instrukcija
Οδηγίες χρήσεις και συντήρησης
Инструкции за употреба и одржување
Instruction d’installation et de fonctionnement
Instructies voor gebruik en onderhoud
AR
www.tesy.com
is a registered trade mark of Tesy ltd.
"Caricamento dell'istruzione" significa che è necessario attendere finché il file non è caricato e pronto per la lettura online. Alcune istruzioni sono molto grandi e il tempo di caricamento dipende dalla velocità della tua connessione a Internet.
 
                     
                     
                     
                     
                     
                     
                     
                     
                     
                     
                     
                     
                     
                     
                     
                     
                     
                     
                     
                     
                     
                     
                     
                                                                         
                                                                         
                                                                         
                                                                         
                                                                         
                                                                         
                                                                         
                                                                         
                                                                        