Miele PRI 421 [EL STW] - Manuale di installazione

Miele PRI 421 [EL STW]

Miele PRI 421 [EL STW] – Manuale di installazione, leggi gratuitamente online in formato PDF. Speriamo che questo ti aiuti a risolvere eventuali dubbi. Se hai ulteriori domande, contattaci tramite il modulo di contatto.

1 Pagina 1
2 Pagina 2
3 Pagina 3
4 Pagina 4
5 Pagina 5
6 Pagina 6
7 Pagina 7
8 Pagina 8
9 Pagina 9
10 Pagina 10
11 Pagina 11
12 Pagina 12
13 Pagina 13
14 Pagina 14
15 Pagina 15
16 Pagina 16
17 Pagina 17
18 Pagina 18
19 Pagina 19
20 Pagina 20
21 Pagina 21
22 Pagina 22
Pagina: / 22

Indice:

  • Pagina 3 – Indice; Istruzioni di installazione
  • Pagina 4 – Requisiti per l'installazione; Condizioni per il funzionamento; Per questo mangano è necessario un fissaggio a pavimento.; Allacciamento elettrico
  • Pagina 5 – Conduttura di evacuazione dell'aria
  • Pagina 7 – Dimensioni
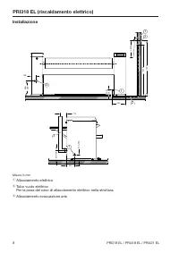
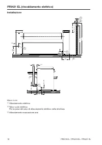
  • Pagina 8 – Installazione
  • Pagina 10 – Dati tecnici; Varianti di tensione/dati elettrici; Sfiato
Caricamento dell'istruzione

Schema di installazione
Mangano professionale
(riscaldamento elettrico)
PRI318 EL
PRI418 EL
PRI421 EL

Prima di installare e mettere in funzione la mac-
china leggere

assolutamente

le presenti istru-

zioni d'uso per evitare di danneggiare l'apparec-
chio e di mettere a rischio la propria sicurezza.

it-IT

M.-Nr. 11 464 460

"Caricamento dell'istruzione" significa che è necessario attendere finché il file non è caricato e pronto per la lettura online. Alcune istruzioni sono molto grandi e il tempo di caricamento dipende dalla velocità della tua connessione a Internet.

Altre istruzioni per Miele PRI 421 [EL STW]

Sommario

Pagina 3 - Indice; Istruzioni di installazione

Indice 3 Istruzioni di installazione ................................................................................................ 4 Requisiti per l'installazione ................................................................................................ 4 Condizioni per il funzionamento ......

Pagina 4 - Requisiti per l'installazione; Condizioni per il funzionamento; Per questo mangano è necessario un fissaggio a pavimento.; Allacciamento elettrico

Istruzioni di installazione 4 PRI318 EL / PRI418 EL / PRI421 EL Requisiti per l'installazione Il mangano può essere posizionato e messo in servizio solo dall'assistenza tecnica Mieleoppure da personale debitamente formato presso i rivenditori autorizzati.  L'installazione del mangano deve avvenire ...

Pagina 5 - Conduttura di evacuazione dell'aria

Istruzioni di installazione PRI318 EL / PRI418 EL / PRI421 EL 5 La tensione di allacciamento necessaria, l'assorbimento di potenza e l'indicazione per laprotezione esterna sono riportati sulla targhetta dati del mangano.Se l'allacciamento avviene a una tensione diversa da quella riportata sulla targ...

Altri modelli di Miele