Pagina 2 - IT; Libretto di Istruzioni
IT 2 2 Libretto di Istruzioni INDICE CONSIGLI E SUGGERIMENTI ............................................................................................................................................10 CARATTERISTICHE ...................................................................................
Pagina 3 - CONSIGLI E SUGGERIMENTI
IT 10 10 CONSIGLI E SUGGERIMENTI INSTALLAZIONE • Il produttore declina qualsiasi responsabilità per danni dovuti ad in- stallazione non corretta o non conforme alle regole dell’arte. • La distanza minima di sicurezza tra il Piano di cottura e la Cappa de- ve essere di 650 mm. • Verificare che la ten...
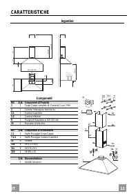
Pagina 4 - CARATTERISTICHE; Ingombro
IT 11 11 CARATTERISTICHE Ingombro 650 min. 598 - 698 - 898 490 240 100 150 18 205 210 min. 560 max. 765 560 Componenti Rif. Q.tà Componenti di Prodotto 1 1 Corpo Cappa completo di: Comandi, Luce, Filtri 2 1 Camino Telescopico formato da: 2.1 1 Camino Superiore 2.2 1 Camino Inferiore 9 1 Flangia di R...
Pagina 5 - INSTALLAZIONE; Foratura Parete e Fissaggio Staffe
IT 12 12 INSTALLAZIONE Foratura Parete e Fissaggio Staffe Tracciare sulla Parete: • una linea Verticale fino al soffitto o al limite superiore, al centro della zona prevista per il montaggio della Cappa; • una linea Orizzontale a: 650 mm min. sopra il Piano di Cottura, per installazione senza Fon- d...
Pagina 6 - Montaggio Corpo Cappa; USCITA ARIA VERSIONE ASPIRANTE
IT 13 13 Montaggio Corpo Cappa • Avvitare sulle Staffe 7.1, le 2 Viti 12d in dotazione. • Agganciare il Corpo Cappa alle Staffe 7.1, centrandolo sulla linea verticale. • Agire sulle Viti 12d, dal sotto della Cappa, per livellare il Cor- po Cappa. 7.1 12.d Connessioni USCITA ARIA VERSIONE ASPIRANTE P...
Pagina 7 - CONNESSIONE ELETTRICA; Montaggio Camino; • Fissare lateralmente alle Staffe con 4 Viti 12c (2,9 x; • Assicurarsi che l’uscita del Raccordo 15 risulti in
IT 14 14 CONNESSIONE ELETTRICA • Collegare la Cappa all’Alimentazione di Rete inter- ponendo un Interruttore bipolare con apertura dei contatti di almeno 3 mm. • Rimuovere i Filtri antigrasso (vedi par. “Manuten- zione”) e assicurarsi che il connettore del Cavo di a-limentazione sia correttamente in...
Pagina 8 - USO; Quadro comandi; M Motore Accende e spegne il motore; V2 Velocità Velocità media, adatta alla
IT 15 15 USO Quadro comandi 1 1 0 1 0 2 3 L M V L V1 V2 V3 S L Luci Accende e spegne l’Impianto di Illuminazione. M Motore Accende e spegne il motore Aspirazione. V Velocità Determina la velocità di e- sercizio: 1. Velocità minima, adatta ad un ricambio d’aria continuo particolarmente silenzioso, in...
Pagina 9 - MANUTENZIONE; Filtri antigrasso; Filtri antiodore al Carbone attivo (Versione Filtrante); SOSTITUZIONE
IT 16 16 MANUTENZIONE Filtri antigrasso PULIZIA FILTRI ANTIGRASSO METALLICI AUTOPORTANTI • Sono lavabili anche in lavastoviglie, e necessitano di essere lavati ogni 2 mesi circa di utilizzo o più frequentemente, per un uso particolarmente intenso. • Togliere i Filtri uno alla volta, spingendoli vers...
Pagina 10 - SOSTITUZIONE LAMPADE; Illuminazione; SOSTITUZIONE LAMPADE
IT 17 17 Illuminazione SOSTITUZIONE LAMPADE Lampade a incandescenza da 40 W • Togliere i Filtri antigrasso metallici. • Svitare le Lampade e sostituirle con nuove di uguali caratteri- stiche. • Rimontare i Filtri antigrasso metallici. Illuminazione SOSTITUZIONE LAMPADE Lampade alogene da 20 W. • Tog...