Miele PG 8583 CD [WW AD CM] - Istruzioni
Miele PG 8583 CD [WW AD CM] - Manuale d'uso, Manuale di installazione in formato PDF online
Istruzioni:
Manuale d'uso Miele PG 8583 CD [WW AD CM]
Sommario
it - Alcune indicazioni sulle istruzioni d'uso 106 Avvertenze Le avvertenze contengono informazioni rilevanti per la sicurez- za. Mettono in guardia da eventuali danni fisici e materiali.Leggere attentamente le avvertenze e rispettare le modalità d'uso ele regole di comportamento ivi riportate. In...
it - Dotazione 108 Dotazione - Modulo di comunicazione XKM 3200 WL LMD Dati tecnici Tensione, potenza assorbita, protezione V. targhetta dati Cavo di alimentazione ca. 1,5 m Velocità di trasmissione Ethernet 10/100 Mbit/s Standard WLAN 802.11 b/g/n Banda di frequenza WLAN 2.400-2.483,5 MHz Potenza ...
it - Descrizione apparecchio 109 Panoramica macchina a Tasto reset/WPS b LED Dopo il montaggio segnala che la macchina è pronta per il funzio-namento mentre quando è in funzione segnala la comunicazioneattiva c Targhetta dati (applicata di lato) d Cavo per dati Accensione e spegnimento Il modulo non...
it - Descrizione apparecchio 110 LED di controllo Il LED (light emitting diode) di controllo fornisce informazioni sullo sta-to del modulo di comunicazione. LED Stato LUCE VERDE Connessione alla rete riuscita. Il modulo èpronto. LUCE GIALLA Rete configurata ma nessuna connessione allarete. LUCE ROSS...
it - Descrizione apparecchio 111 Protezione e sicurezza dei dati Non appena si attiva la funzione di connessione in rete e si collegal'apparecchiatura a internet, i seguenti dati vengono inviati al Cloud diMiele: - numero di fabbricazione dell'apparecchio - modello apparecchio e dotazione tecnica - ...
it - Indicazioni per la sicurezza e avvertenze 112 Leggere con attenzione le istruzioni d'uso prima di utilizzare questomodulo di comunicazione per evitare di danneggiare la macchina edi mettere a rischio la propria sicurezza. Conservare con cura que-ste istruzioni per poterle eventualmente passare ...
it - Montaggio e installazione *INSTALLATION* 113 Per usare la WLAN Se si desidera usare la connessione WLAN del modulo, occorre os-servare quanto segue prima dell'installazione. Ampiezza e di-sponibilità del se-gnale WLAN L'ampiezza e/o l'intensità del segnale WLAN dipende dalle condizionistruttura...
it - Montaggio e installazione *INSTALLATION* 114 Installazione Prima del montaggio del modulo di comunicazione confrontare assolutamente i dati di allacciamento (tensione e frequenza) sullatarghetta dati del modulo con quelli sulla targhetta dati della mac-china. I dati devono corrispondere affin...
it - Montaggio e installazione *INSTALLATION* 115 Posare il cavo dati L'uso simultaneo di WLAN e LAN non è tecnicamente possibile. WLAN Se si desidera usare la connessione WLAN, il cavo LAN non deve es-sere collegato a una rete o a un terminale di dati. Il segnale WLAN èdisponibile solo quando il ca...
it - Connessione di rete 116 Stabilire la connessione WLAN. Cavo LAN Il cavo LAN non deve essere collegato alla rete. Se il cavo LAN è in-serito, il segnale WLAN viene automaticamente disattivato. L'uso si-multaneo di WLAN e LAN non è tecnicamente possibile. Connessione viaWPS Il requisito per la co...
it - Connessione di rete 117 Accedere al menù Accendere la macchina con il tasto . Attendere circa 90 secondi prima di poter iniziare a configurare l'inter-faccia. Aprire il menù tramite il seguente percorso: Tasto Impostazioni avanzate Interfaccia Interfaccia Ethernet ...
it - Connessione di rete 120 Interfaccia web Il modulo XKM 3200 WL LMD ha la propria interfaccia web, che puòessere utilizzata per configurare le impostazioni di rete, impostare lestampanti o cambiare la password. L'interfaccia è accessibile da qualsiasi stazione di lavoro sulla rete lo-cale. I requ...
it - Il Vostro contributo alla tutela dell'ambiente 121 Smaltimento imballaggio L’imballaggio ha lo scopo di proteggere la merce da eventuali danniche potrebbero verificarsi durante le operazioni di trasporto. I materia-li utilizzati per l’imballaggio sono riciclabili, per cui selezionati secon-do c...
Manuale di installazione Miele PG 8583 CD [WW AD CM]
Sommario
Istruzioni di installazione 2 PG 8582 CD / PG 8583 CD Autorizzazioneper l'installazione La macchina può essere installata solo da un elettricista o un idrau- lico qualificato e autorizzato e in base alle istruzioni di installazione prescritte. Installare la macchina nel rispetto delle norme e dirett...
Istruzioni di installazione PG 8582 CD / PG 8583 CD 3 Normativa perGermania eSvizzera In base alle normative nazionali sulla protezione dell'acqua potabi-le, i dispositivi antiriflusso forniti devono essere montati sull'allac-ciamento di acqua fredda e calda tra il rubinetto dell'acqua e il tubodi a...
Istruzioni di installazione 4 PG 8582 CD / PG 8583 CD Moduli di comuni-cazione I moduli di comunicazione – modulo ethernet o modulo RS232 – non sono in dotazione ma sono disponibili come optional. Montareeventuali prese nell'area della macchina onde poter trasferire e stam-pare dati di processo. L'a...
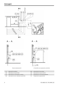
Immagini PG 8582 CD / PG 8583 CD 5 Dimensioni standard Dimensioni con ampliamento profondità EL Allacciamento elettrico WW Allacciamento acqua calda KW Allacciamento acqua fredda AW Allacciamento acqua di scarico DK Allacciamento condensatore di vapore VE Allacciamento acqua demineralizzata NW Allac...
Dati tecnici 8 PG 8582 CD / PG 8583 CD Allacciamento elettrico Tensione (al momento della fornitura) 3N AC 400/50 Potenza assorbita 9,3 kW Protezione 3 x 16 A Cavo di allacciamento alla rete elettrica, sezione minima 5 x 2,5 mm² Lunghezza cavo di alimentazione (H05(07)RN-F) 1,8 m Tensione (commutabi...
Dati tecnici PG 8582 CD / PG 8583 CD 9 Acqua demineralizzata Temperatura max. 65 °C Pressione di flusso consigliata (AD in pressione) 200 kPa Pressione minima di flusso con prolunga di afflusso 30 kPa Pressione max. (AD in pressione) 1.000 kPa Flusso 7,5 l/min. Raccordo allacciamento (committente...
Dati tecnici 10 PG 8582 CD / PG 8583 CD Cessione di calore sul luogo di posizionamento Mediante irradiazione durante il funzionamento 0,35 kWh Mediante strumenti al momento del prelevamento 0,40 kWh Condizioni per il posizionamento Temperatura ambiente consentita 40 °C Umidità relativa dell'aria m...
Other Miele Altri Manuals
-
Miele APWM 063
Manuale di installazione
-
Miele APWM 020
Manuale d'uso
-
Miele APWM 020
Manuale di installazione
-
Miele SC
Manuale di installazione
-
Miele PR
Manuale di installazione
-
Miele FP 900
Manuale di installazione
-
Miele RP 900
Manuale di installazione
-
Miele APWM 019
Manuale d'uso
-
Miele APWM 019
Manuale di installazione
-
Miele PR 900
Manuale di installazione
-
Miele A 830/1
Manuale d'uso
-
Miele TT 86
Manuale d'uso
-
Miele RP 1150
Manuale di installazione
-
Miele APCL 001
Manuale di installazione
-
Miele E 473/2
Manuale d'uso
-
Miele FFK 01
Manuale di installazione
-
Miele FFK 01
Manuale
-
Miele DS 5
Manuale di installazione
-
Miele DS 10
Manuale di installazione
-
Miele DOS K 85 flex
Manuale di installazione