Jlg X17J Operator Manual- Istruzioni
Jlg X17J Operator Manual- Manuale d'uso in formato PDF online
Istruzioni:
Manuale d'uso Jlg X17J Operator Manual
Sommario
APPARECCHIO DI SOLLEVAMENTO JLG PREFAZIONE Per: • Relazione incidenti • Pubblicazioni sicurezza del prodotto • Aggiornamenti proprietari attuali • Domande riguardanti la sicurezza del prodotto • Informazioni sulla conformità standard e regolamenti• Domande riguardanti le applicazioni per prodotti sp...
6.2 Procedure per un corretto utilizzo ......................................................Page 58 6.2.1 Tabella riassuntiva delle norme di sicurezza per l’operatore ..................Page 58 6.2.2 Zone di aggrappaggio operatore nel cesto ..............................................Page 59 6.3 A...
Nota: Tutte le foto ed i disegni inseriti nel seguente manuale sono stati aggiunti per sem‑ plificare la comprensione, da parte del lettore, di quanto esposto. La macchina in Vs. pos‑sesso può differire in alcune parti dalle foto e dai disegni riportati. NORMATIVA SEGUITA La macchina è stata progett...
2.1.2 C OMANDI IDRAULICI SU CESTELLO 1 X17JR0210311 10 PIATTAFORMA DI SOLLEVAMENTO A BRACCIO MODELLO X17J JLG 2 4 3 5 6 7 R IF . D ESCRIZIONI A ZIONAMENTO / MOVIMENTO P ITTOGRAMMA IN PROSSIMITÀ DEL COMANDO 1 Comando livellamento cesto Questa leva consente di agire sul cilin‑dro di livellamento della...
X17JR0210311 PIATTAFORMA DI SOLLEVAMENTO A BRACCIO MODELLO X17J JLG 11 R IF . D ESCRIZIONI A ZIONAMENTO / MOVIMENTO P ITTOGRAMMA IN PROSSIMITÀ DEL COMANDO 2 Leva rotazione cesto Questa leva consente all’operatore di ruo‑tare il cesto.L’allineamento del cesto è segnalato dalledue frecce di riscontro....
EMERGENZA PARTE AEREA Esiste una seconda postazione di comando della parte aerea denominata postazione di emer‑genza parte aerea. Questa è localizzata a terra, sul fianco della macchina in prossimità deldistributore idraulico parte aerea da terra. Per abilitarla è necessario agire sul deviatore pre‑...
La postazione di comando di emergenza è stata progettata per operare sulla strutturaestensibile solo per manovre di emergenza da parte di personale di soccorso a terra, chedeve comunque essere istruito e conoscere il funzionamento della macchina e delle suesicurezze, per interventi di manutenzione e...
STABILIZZAZIONE E DESTABILIZZAZIONE La stabilizzazione e la destabilizzazione della macchina devono essere eseguite dalla posta‑zione di comando di guida in navicella con il telecomando posizionato all’interno dell’appo‑sita sede. Dopo aver abbandonato la postazione di comando in navicella, ricordar...
2.1.5 DATI TECNICI ..............................................................................................PORTATA 200 kg PORTATA 120 kg ALTEZZA PIATTAFORMA (piano di calpestio) ....................13120 mm ......14810 mmALTEZZA MAX DI LAVORO ..............................................15220...
dizioni del terreno su cui dovrà manovrare e stabilizzare. • Durante il lavoro è necessaria la presenza a terra di almeno una persona specializzata checonosca l’uso della macchina ed il contenuto del MANUALE DI USO E MANUTENZIONE epossa intervenire in caso di necessità.• E’ tassativamente proibito a...
di stoccaggio del carburante.Dopo avere effettuato il rifornimento, accertarsi che il tappo sia chiuso in maniera sicura edappropriata. Fare attenzione a non toccare la marmitta quando questa è calda durante il fun‑zionamento della macchina o subito dopo avere spento il motore. Prevenzione dei danni...
X17JR0210311 26 PIATTAFORMA DI SOLLEVAMENTO A BRACCIO MODELLO X17J JLG Pos. Codice q.tà 0102 06924300 01 03 1608710003 04 04 1608710004 02 05 07059600 01 06 06555300 01 07 07060500 02 08 1608710001 01 09 1608710002 01 10 06085900 01 111213 06039700 09 14 06086700 10 15 06039900 08 16 06706500 01 17 ...
SOSTITUIRE GLI ADESIVI E LE TARGHETTE NON APPENA DETERIORATI. IL MANCATO RISPETTO DI UNA QUALSIASI PRESCRIZIONE, PER DETERIORAMEN‑TO, PERDITA O MANCATA CONSULTAZIONE DI UN ADESIVO DI SICUREZZA, PUÓ,ESSERE CAUSA DI GRAVI INCIDENTI. X17JR0210311 PIATTAFORMA DI SOLLEVAMENTO A BRACCIO MODELLO X17J JLG 3...
3.3 V ALVOLE DI BLOCCO CILINDRI I cilindri degli stabilizzatori sono dotati di doppia valvola di blocco che in caso di avarie del‑l’impianto o rotture di tubi bloccano il cilindro evitando pericolose situazioni di instabilitàdella piattaforma.Tutti i cilindri che muovono la parte aerea della struttu...
carico è 120 kg. Nel caso di lavoro con jib chiuso il carico massimo ammesso è 200 kg. Suldisplay del telecomando appare sempre l’indicazione del carico massimo in funzione dellamodalità di lavoro.Quando viene raggiunto il carico massimo ammesso, compare un’icona sul display del tele‑comando oltrech...
I perni nelle posizioni di utilizzo più delicate sono filettati all’estremità e sono dotati di dadiautofrenanti (4) o ghiere filettate autofrenanti che impediscono eventuali cedimenti dellastruttura. Seguire scrupolosamente le verifiche del corretto serraggio di tutti i dispositivi diblocco dei pern...
PULSANTE 4 Consente l'abilitazione della discesa di emergenza da navicella. La conferma dell' abilitazio‑ne è visualizzata sullo schermo in posizione 8. PULSANTE 5: Consente la selezione della velocità di traslazione e dei giri motore. Esistono tre velocità possibili: • LENTA : motore a 1500 rpm per...
PULSANTE 7: Consente di eseguire l’autostabilizzazione della macchina. PULSANTE 11: Consente l’avviamento/spegnimento del motore termico. Se il pulsante è premuto a motoreacceso, si comanda lo spegnimento dello stesso. PULSANTE 12: Consente l’avviamento/spegnimento del motore elettrico. Se il pulsan...
4.2 P EDALE All’interno del cesto operatore è presente un interruttore a pedale che deve essere azionatoper consentire i movimenti della macchina dal cesto. Se si tenta di utilizzare la macchina dalcesto senza avere premuto il pedale il movimento sarà impedito ed apparirà sul display deltelecomando ...
X17JR0210311 PIATTAFORMA DI SOLLEVAMENTO A BRACCIO MODELLO X17J JLG 5 DISPOSITIVI DI EMERGENZA Le nozioni di seguito riportate riguardo i dispositivi di emergenza sono messe a disposizionedell’utilizzatore al fine di capire il comportamento della macchina e le sequenze possibili dilavoro; inoltre sa...
5.2 P OMPA A MANO La pompa a mano (2) serve a mandare olio in pressione per eseguire manovre in caso diemergenza dovuta ad avarie dell’impianto idraulico principale.La pompa a mano è dotata di un deviatore manuale (1) che permette di selezionare secomandare i due stabilizzatori di destra (Posizione ...
La chiave per l’azionamento del by‑pass sicurezze si trova piombata a lato della scatolacomponenti elettrici in prossimità della batteria.Per prelevarla forzare la piombatura. Dopo l’utilizzo del by‑pass sicurezze è fatto obbligodi rivolgersi a un centro assistenza JLG per verificare le cause che ha...
5.6 D EVIATORE PER ABILITARE COMANDI DI EMERGENZA Questo dispositivo (1) è un rubinetto che permette all’operatore che sta a terra di commutare icomandi dalla postazione sulla navicella alla posizione di emergenza posta sulla torretta girevole (2). Ci si raccomanda vivamente di osservare la regola s...
6. UTILIZZO DELLA MACCHINA 6.1 NORME DI SICUREZZA DA ADOTTARE PRIMA DELL’UTILIZZO DELLA PIATTAFORMA 6.1.1 P ERICOLO DI FULMINAZIONE ELETTRICA Nel caso si debba operare con la macchina in prossimità di linee elettriche, è fatto obbligoall’utilizzatore di mantenersi ad una distanza adeguata. Nella tab...
6.1.3 P ERICOLO DOVUTO ALLA ZONA DI LAVORO LA MACCHINA PUÒ’ LAVORARE ESCLUSIVAMENTE SU TERRENO COMPATTO ELIVELLATO. Verificare sempre che la pendenza del suolo nella zona di posizionamento della piattaformanon sia superiore a 10°. Durante la fase di stabilizzazione verificare con la bolla posta inpr...
PERIODICAMENTE.L'uso delle imbragature è obbligatorio in relazione alle normative locali di ogni singoloStato. Nei Paesi dove la legge non preveda l'obbligo di utilizzo di sistemi di ritenuta, lascelta spetta al datore di lavoro e/o all'utilizzatore. • Prima di iniziare a lavorare l’operatore deve a...
6.3 AREA DI LAVORO X17JR0210311 60 PIATTAFORMA DI SOLLEVAMENTO A BRACCIO MODELLO X17J JLG PORTATA MAX 120 KG ( 1 persone 80 kg + cassetta attrezzi 40 kg ) PORTATA MAX 200 KG ( 2 persone 80x2=160kg + cassetta attrezzi 40 kg )
idraulico, in modo che arrivi ad almeno 20°C di temperatura, prima di azionare lapiattaforma. ‑ Quando si sale in navicella, agganciare subito le imbragature di sicurezza agli appositipunti di fissaggio, prima di compiere qualsiasi manovra. Si ricorda che le imbragature disicurezza devono essere con...
6.4.2 A VVIAMENTO DEL MOTORE A BENZINA E DIESEL Prima di avviare il motore è necessario: ‑ Conoscere ed avere chiare tutte le procedure descritte nel MANUALE USO E MANU‑TENZIONE della macchina e del motore in dotazione alla macchina e conoscere il signi‑ficato delle etichette adesive di sicurezza. ‑...
L’AVVIAMENTO DEL MOTORE DEVE SEMPRE AVVENIRE CON TUTTI I PULSANTI EDI JOYSTICK DI COMANDO IN POSIZIONE NEUTRA.Verificare sempre che non vi siano elementi estranei (es. rami) che azionano accidentalmenteun comando, la piattaforma potrebbe muoversi repentinamente indipendentemente dallavolontà dell’op...
‑ Accertarsi che tutti i pulsanti di Arresto di emergenza siano rilasciati. Tale condizione èvisibile sul display radiocomando verificando l'assenza dell'apposita icona in posizione7. Se si effettua un tentativo di avviamento con un pulsante di Arresto di emergenza nonrilasciato, comparirà sul displ...
6.4.5 S ELEZIONE AUTOMATICA CARICO OPERATIVO La piattaforma aerea prevede la possibilità di lavorare con due carichi operativi diversificati:200kg o 120kg. In funzione del carico operativo si abilita una delle due aree di lavoro dispo‑nibili sulla macchina.Il carico operativo dipende dalla posizione...
6.4.6 T RASLAZIONE La piattaforma JLG è una macchina semovente in grado di spostarsi agevolmente su qualsia‑si tipo di terreno, in grado di superare grandi pendenze (fino a 21°) e, viste le contenutedimensioni, di entrare in aperture ristrette. Condizione necessaria per la traslazione è che iquattro...
F ASI OPERATIVE PER LA TRASLAZIONE Prima di effettuare il movimento della traslazione accertarsi che:‑ Tutte le prescrizioni precedentemente riportate in questo capitolo siano state rispettate ‑ Il suolo su cui si intende compiere la traslazione sia compattato e abbia una portanza taleda sopportare ...
6.4.7 P ARCHEGGIO DELLA MACCHINA IN PENDENZA O SU TERRENO SCONNESSO Quando parcheggiate la macchina con gli stabilizzatori chiusi in pendenza o su terreno scon‑nesso, assicuratevi che il carro sia in posizione aperta e di bloccare con dei cunei i cingoli perprevenire movimenti della macchina. ‑ Non ...
Controllare sempre la bolla visiva e verificare che la pendenza sia effettivamente inferio‑re a 1°. COMANDO MANUALE DEGLI STABILIZZATORI La funzione comando manuale dei singoli stabilizzatori non deve essere utilizzata per la sta‑bilizzazione della macchina ma solamente per l’eventuale correzione de...
Nota : È IMPORTANTE CHE A MACCHINA STABILIZZATA IL CARRO SIA SEMPRE SOLLEVATO DAL TER ‑ RENO . È importante che dopo aver utilizzato il comando manuale degli stabilizzatori in caso dimacchina stabilizzata si pressurizzino i fondelli dei cilindri degli stabilizzatori. Per farequesto effettuare un cic...
stinare le condizioni di sicurezza operative stabilite dal costruttore. Accertarsi che l'appoggio degli stabilizzatori avvenga su terreno orizzontale. NONAPPOGGIARE GLI STABILIZZATORI SU SUPERFICI VERTICALI O INCLINATE. 6.4.9 S TABILIZZAZIONE E DESTABILIZZAZIONE AUTOMATICA La piattaforma aerea è dot...
Al termine della procedura verificare sempre che la bolla visiva di riscontro sia all'internodella zona verde. Se ciò non fosse contattare il servizio assistenza JLG. Se durante le fasi di appoggio al suolo uno degli stabilizzatori non dovesse arrivare a contat‑to con il terreno, la macchina continu...
75 PIATTAFORMA DI SOLLEVAMENTO A BRACCIO MODELLO X17J JLG X17JR0210311 stessa e causare danni o addirittura la morte degli operatori o delle persone in prossimitàdella zona di lavoro. E' assolutamente obbligatorio lavorare con la macchina stabilizzatacon inclinazione inferiore al limite ammesso dal ...
• Prestare la massima attenzione agli ostacoli che possono collidere con le varie partidella macchina in fase di movimentazione. Prima di effettuare QUALSIASI movi‑mento accertarsi che nulla possa interferire con NESSUNA parte della macchina(ramaglie, parti sporgenti di costruzioni, etc.). È assolut...
A LLARME SOLLEVAMENTO CESTO Se durante le fasi di utilizzo in quota della macchina, per un qualunque motivo, viene solle‑vato il cesto operatore dalla propria sede di appoggio sul sensore di carico interviene unallarme che inibisce tutti i movimenti della macchina e apparirà un messaggio di errore s...
79 PIATTAFORMA DI SOLLEVAMENTO A BRACCIO MODELLO X17J JLG X17JR0210311 Se utilizzando la macchina si entra nella zona di rotazione vincolataverrà bloccato il movimento in corso ed apparirà sul display del radio‑comando l’indicazione di alzare il 1‑2° braccio. Per poter riabilitare i movimenti alzare...
Il livellamento della navicella è previsto solo: ‑ come manovra eccezionale in caso di lieve malfunzionamento del livellamento automati‑co, pertanto se l’inconveniente dovesse ripetersi di frequente è necessario fare controlla‑re la navicella da un’officina autorizzata; ‑ l’azionamento del comando d...
pale del display ); ‑ azionare la leva relativa al braccio che si intende chiudere fino al raggiungimento dell’al‑tezza desiderata (paragrafo 2.1.1 Postazione di comando ); ‑ rilasciare il pulsante 4. Trattandosi di discesa per gravità non è possibile ottenere il movimento di rotazione dellapiattafo...
c) Movimentare la parte aerea della macchina attraverso le leve manuali poste sul distribu‑tore a terra secondo quanto riportato sull'adesivo posto in loro prossimità e secondoquanto riportato in questo manuale, fino a riportare al suolo l’operatore nel cestello. Da questa posizione il sistema autom...
‑ Posizionare la chiave di emergenza sulla scatola componenti elettrici prelevandola dal lato della stessa dove è piombata(vedi foto); ‑ Azionare la chiave di emergenza ruotandola in senso antiorario e mantenerla in posizione (vediadesivo). Sul display del radiocomando apparirà l’icona di BY‑PASS si...
6.5.4 A ZIONAMENTO DELLA DISCESA DI EMERGENZA DA TERRA IN CASO DI MALORE DELL ’ OPERATO ‑ RE , MOTORE FUNZIONANTE E IMPIANTO ELETTRICO IN AVARIA Questa discesa di emergenza si attua solamente in caso di malore dell’operatore, motore fun‑zionante e impianto elettrico in avaria o nel caso in cui non s...
‑ Al termine dell’operazione di emergenza riportare il pomello nella posizione originaria avendo cura di rimontare il cappucciodi protezione e far ripristinare la doppia piombatura dal perso‑nale qualificato JLG. Svitare completamente il volantino consenso parte aerea. 6.5.5 A ZIONAMENTO DELLA DISCE...
87 PIATTAFORMA DI SOLLEVAMENTO A BRACCIO MODELLO X17J JLG X17JR0210311 6.5.6 M ANOVRE DI EMERGENZA DELLA PARTE CARRO : MOVIMENTAZIONE DEGLI STABILIZZATORI DELLA PIATTAFORMA CON POMPA MANUALE PER CONSENTIRE IL TRASPORTO DELLA MACCHINA Per sollevare dal terreno gli stabilizzatori al fine di chiuderli ...
6.5.7 M OVIMENTAZIONE DI EMERGENZA DEL SOTTOCARRO IN CASO DI SPOSTAMENTO DELLA PARTE AEREA Durante le fasi di trasporto può accadere che la parte aereadella macchina ruoti perdendo l’allineamento.Se ciò accade si può ricorrere ad una delle due PROCEDURE DIEMERGENZA sotto riportate: A) Riallineamento...
89 PIATTAFORMA DI SOLLEVAMENTO A BRACCIO MODELLO X17J JLG X17JR0210311 originale e chiudere il vano componenti elettrici. B) Movimentazione del sottocarro con macchina non allineata: ‑ Aprire il vano componenti elettrici; ‑ Posizionare la chiave di emergenza sulla scatola compo‑nenti elettrici prele...
6.6 R ICARICA DEL RADIOCOMANDO E CONNESSIONE ELETTRICA DI EMERGENZA Il radiocomando è alimentato da una batteria che garantisce un’autonomia di oltre 60 ore instand‑by. Lo stato di carica della batteria è sempre visualizzato sul display quando questo èacceso (vedi foto). Naturalmente se la batteria ...
Se si abbandona la macchina per periodi lunghi, superiori ai 2 giorni, scollegare semprel’alimentazione elettrica, disarmare l’interruttore differenziale generale e rimuovere labatteria dal radiocomando. Il caricabatterie è in funzione quando il led posto sulla sua parte frontale è acceso. La com‑pl...
re la perdita di stabilità della macchina! Ricordate che: ‑ Se dei rami o tronchi cadono sui dispositivi di sicurezza della macchina possono causar‑ne la rottura; ‑ La caduta di parti di piante può rovinare la macchina; ‑ La caduta di parti di piante può schiacciare il pulsante di emergenza a terra....
95 PIATTAFORMA DI SOLLEVAMENTO A BRACCIO MODELLO X17J JLG X17JR0210311 7.4 I NGRASSAGGIO BRACCIO SFILABILE TELESCOPICO Con l’ausilio di un pennello, cospargere di grasso ibracci sfilabili telescopici. 7.5 R EGOLE DI SICUREZZA PER LO SVOLGIMENTO DELLE OPERAZIONI DI MANUTENZIONE • Le parti di ricambio...
MOTORE DIESEL HATZ * Primo intervento. ** Comunque ogni 3 mesi. *** Comunque ogni 5 anni. Per quando riguarda la manutenzione approfondita del motore termico vedere manutenzione del produttore indotazione.# Comunque ogni anno. Se il serraggio non è corretto sostituire i dadi con due nuovi aventi le ...
7.7 INTERVALLI DI ISPEZIONE E MANUTENZIONE Tutte le piattaforme JLG devono essere ispezionate, testate e mantenute secondo le seguentiprescrizioni. Vedere il Manuale uso e manutenzione per la lista completa, gli intervalli racco‑mandati e le corrette procedure per i controlli e ispezioni. A ‑ PRESCR...
101 2. Dopo ogni danno effettivo, sospettato o potenziale subito durante un incidente chepotrebbe potenzialmente interessare l’integrità o la stabilità della piattaforma aerea. Taliincidenti possono includere cortocircuiti elettrici, urti, cadute, collisioni o casi di sovra‑sollecitazione o cediment...
7.9 MANUTENZIONE DEI CINGOLI IN GOMMA 7.9.1 C ONTROLLO TENSIONE CINGOLI Fermate la Vostra macchina su un terreno solido ed in piano. Sollevate la Vostra macchina incondizioni di sicurezza e mettete dei supporti ben stabili sotto il telaio del sottocarro per sup‑portare il tutto. In corrispondenza de...
5. Per tendere il cingolo, collegate una pistola a grasso nell’ingrassatore 2 e aggiungete grassofinché la tensione del cingolo è dentro i valori specificati. È anormale se il cingolo rimane teso dopo aver girato la valvola 1 in senso antiorario o se ilcingolo è ancora allentato dopo aver messo gras...
‑ contatto improprio fra ruota dentata e cingolo;‑ rottura interna dei rulli;‑ funzionamento su terreno sabbioso. C) Separazione delle anime metalliche L’anima metallica funziona da adesivo della gomma specie fra l’anima stessa e le corde d’acciaio. La separazione può essere causata da eccessiva ten...
7.9.4 S OSTITUZIONE CINGOLI IN GOMMA Il grasso contenuto nel cingolo idraulico è sotto pressione. Per questo non allentate la valvoladi ingrassaggio 1 per più di un giro; se la valvola viene allentata troppo, rischia di essereespulsa sotto l’effetto della pressione del grasso, mettendo in serio peri...
3. Ingranate le maglie del cingolo con la ruota dentata e posizionate l’altro capo del cingolo sulla ruota tendicingolo. 4 . Fate ruotare la ruota motrice in retromarcia (7) spingendo all’interno del telaio (8) le suole del cingolo. 5 . Usando un tubo d’acciaio posizionate il cingolo e ruotate nuova...
107 PIATTAFORMA DI SOLLEVAMENTO A BRACCIO MODELLO X17J JLG X17JR0210311 Dimensi one TPI Ø Bullone Sezione resistente Precarico Precarico In Sq In LB IN-LB [N.m] IN-LB [N.m] IN-LB [N.m] IN-LB [N.m] LB IN-LB [N.m] IN-LB [N.m] IN-LB [N.m] 4 4 0 0,1120 0,00604 380 8 0,9 6 0,7 48 0,1120 0,00661 420 9 1,0...
PIATTAFORMA DI SOLLEVAMENTO A BRACCIO MODELLO X17J JLG 108 X17JR0210311 Dimensio ne TPI Ø Bullone Sezione resistente Precarico Vedi Nota 4 Precarico Vedi Nota 4 In Sq In LB IN-LB [N.m] IN-LB [N.m] IN-LB [N.m] L B IN-LB [N.m] IN-LB [N.m] IN-LB [N.m] 4 4 0 0,1120 0,00604 48 0,1120 0,00661 6 3 2 0,1380...
La cartuccia deve essere sostituita ad ogni cambio d’olio e secondo gli intervalli previsti nellatabella di manutenzione.NOTA: è importantissimo effettuare la prima sostituzione della cartuccia dopo 50 h di lavo‑ro, per eliminare dall’impianto idraulico i residui di lavorazione dei tubi e dei compon...
c) Chiudere completamente uno dei due stabilizzatori destri e mantenere azionato il movimento.Leggere il valore di pressione. Questo valore è relativo al distributore traino destro.Spegnere la macchina. d) Collegare il manometro alla bocca MA (rif. Imp. idraulico).e) Portarsi al posto di comando e a...
7.18 C ONTROLLO USURA DEI PATTINI DEL BRACCIO TELESCOPICO ‑ Verificare visivamente il gioco dei bracci sfilo. ‑ Nel caso il gioco sia superiore a 3 mm è necessario agire sui registri in materiale plasticoavvitandoli fino ad appoggiarsi al braccio nel caso di quelli superiori, o portandoli acirca 1 m...
Se il periodo di inattività è superiore ad un mese, si consiglia di isolare la batteria:‑ Staccare i morsetti dalla batteria, iniziando sempre dal polo negativo (‑). ‑ Riattaccare i cavi elettrici cominciando sempre dal polo positivo (+). 7.20.2 R ECHARGING THE BATTERY ‑ L’operazione di ricarica del...
8 NORME DI SICUREZZA PER IL TRASPORTO Accertatevi sempre che il mezzo con cui intendete trasportare la piattaforma abbia portataadeguata e che nessuna parte della PLE fuoriesca dai limiti di sagoma prescritti dal codicedella strada. D URANTE IL TRASPORTO COPRIRE IL TELECOMANDO CON L ’ APPOSITA PROTE...
8.2 C ARICO E SCARICO CON RAMPE La piattaforma gode di alta manovrabilità e stabilità anche in fase di traslazione, nonostantequesto raccomandiamo all’utilizzatore di operare con attenzione anche durante lo svolgi‑mento di quelle operazioni che possono sembrare più semplici. Ad esempio per salire su...
8.3 S OLLEVAMENTO DELLA MACCHINA Per sollevare la macchina occorre innanzi tutto un apparecchio di sollevamento di portataadeguata in funzione della distanza e dell’altezza a cui si vuole sollevare la PLE. • Per le operazioni di sollevamento necessarie per la manutenzione o il caricamento sumezzi di...
121 PIATTAFORMA DI SOLLEVAMENTO A BRACCIO MODELLO X17J JLG X17JR0210311 8.4 T RASPORTO DELLA MACCHINA Una volta salita sul rimorchio la macchina va fissata con tiranti secondo lo schema descrittonella fotografia di seguito riportata. Verificare che le misure della macchina e del rimorchiosiano compa...
9 M ENU ' SERVICE SU TELECOMANDO Sul telecomando è presente un pulsante SERVICE (rif.pulsante 6) che consente di visualizza‑re lo stato dei parametri della macchina e offre un ausilio nei controlli di sicurezza dellamacchina previsti dal presente manuale.Premendo il pulsante 6 si entra in un menù nu...
PIATTAFORMA DI SOLLEVAMENTO A BRACCIO MODELLO X17J JLG 124 X17JR0210311 9.2 M ENU ' ERRORI Indica lo stato congruente (OK) o meno (FAULT) dei sensori che hanno un doppio controllo.I sensori sono elencati su diverse pagine: 1 PREC SI ACCENDE ALLA PAGINA PRECEDENTE 2 SUCC SI ACCENDE ALLA PAGINA SUCCES...
125 10. ANALISI DEI GUASTI PIATTAFORMA DI SOLLEVAMENTO A BRACCIO MODELLO X17J JLG X17JR0210311 PROBLEMI La pompa è particolarmenterumorosa. Attivata la pompa non arrivaolio all'impianto oleodinami‑co o arriva in bassa pressionenon sufficiente a muovere lamacchina Una volta stabilizzata l’at‑trezzatu...
11. VERIFICHE DA ESEGUIRE SULLA MACCHINA DOPO LE RIPARAZIONI 11.1 V ERIFICA DEL CORRETTO FUNZIONAMENTO DEI COMANDI ‑ Controllare da terra che i comandi azionino dolcemente la macchina. ‑ Per il corretto funzionamento dei comandi fare riferimento al relativo paragrafo. 11.2 C ONTROLLO FUNZIONAMENTO D...
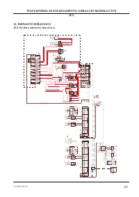
12.1.1 L EGENDA SCHEMA IMPIANTO IDRAULICO 1 Pompa a mano 2 Motore elettrico 2,2 kW 4 poli IP55 3 Motore benzina Honda iGX440/ motore diesel Hatz 1B40 4 Pompa doppia ad ingranaggi 5 Blocco collettore mandate pompe 6 Filtro a scarico 7 Collettore scarichi 8 Distributore elettroproporzionale 9 Distribu...
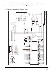
X17JR0210311 PIATTAFORMA DI SOLLEVAMENTO A BRACCIO MODELLO X17J JLG 13 S CHEMA ELETTRICO MOTORE BENZINA E DIESEL 129 0001 A.00 Gold Lif t 17.80 Benzina Hinowa S.p.A. 11 01/07/2010 R.Marchesini Ti tolo: Dat a: Foglio: di: Numero di Disegno: R ev: Dis: 1N4007 1N4007 A2 B53 B52 A51 A12 A40 A13 A41 A14 ...
Passaggio di proprietà Al Proprietario del prodotto: Nel caso in cui siate l’attuale proprietario del prodotto descritto nel presente manuale ma NON NE SIATE l’acquirente originario, gradiremmo acquisire alcune informazioni. Per poter ricevere i bollettini tecnici attinenti alla sicurezza è molto im...