Fulgor Milano CH 1004 ID TS WH - Istruzioni
 
                                Piano cottura Fulgor Milano CH 1004 ID TS WH - Manuale d'uso in formato PDF online
Istruzioni:
Manuale d'uso Fulgor Milano CH 1004 ID TS WH
Sommario
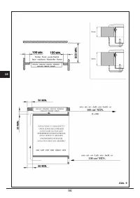
4 5 I Installazione Tutte le operazioni relative all’installazione (allacciamento elettrico) devono essere eseguite da personale qualificato secondo le norme vigenti.Per le istruzioni specifiche vedi la parte riservata all’installatore. Uso Tasti a sfioramento Tutte le operazioni possono essere comp...
6 7 I Funzioni Accensione/spegnimento del Touch Control Dopo l’alimentazione, il touch richiede circa 1 secondo prima di essere pronto al funzionamento. Dopo il reset tutti i displays e i LED lampeggiano per ca. 1 secondo. Passato questo tempo tutti i display e i LED si spengono e il touch è in posi...
16 17 I non ripristinare l’ultima impostazione dell’operatore (da eseguirsi in modo prioritario). Questo caso speciale può verificarsi solo durante il tempo di ritardo di 3 secondi della riduzione di potenza. N.B. Al verificarsi di una anche minima frattura della superficie del piano di cottura disi...
 
                             
                             
                             
                             
                             
                             
                             
                             
                             
                             
                             
                             
                             
                             
                             
                             
                             
                             
                             
                             
                             
                             
                             
                             
                             
                             
                             
                             
                             
                             
                             
                             
                             
                             
                             
                             
                             
                             
                             
                             
                             
                             
                             
                             
                             
                             
                             
                             
                             
                             
                             
                             
                             
                             
                             
                             
                             
                             
                             
                             
                                                                 
                                                                 
                                                                 
                                                                 
                                                                 
                                                                 
                                                                 
                                                                 
                                                                 
                                                                 
                                                                 
                                                                 
                                                                 
                                                                 
                                                                 
                                                                 
                                                                 
                                                                 
                                                                