Korting KHI 9751 X - Manuale d'uso
 
                
                                    Cappa da cucina Korting KHI 9751 X – Manuale d'uso, leggi gratuitamente online in formato PDF. Speriamo che questo ti aiuti a risolvere eventuali dubbi. Se hai ulteriori domande, contattaci tramite il modulo di contatto.
Indice:
- Pagina 7 – ITALIANO; GENERALITA’; ISTRUZIONI PER L’INSTALLAZIONE
- Pagina 8 – USO E MANUTENZIONE
- Pagina 9 – DEUTSCH; ALLGEMEINES
CAPPA ASPIRANTE
- Istruzioni per l’uso
DUNSTABZUGSHAUBE
- Gebrauchsanweisung
CAMPANA EXTRACTORA
- Manual de utilización
HOTTE DE CUISINE
- Notice d’utilisation
AFZUIGKAP
- Gebruiksaanwijzing
COIFA ASPIRANTE
- Manual do usuário
COOKER HOOD
- User instructions
ODSAVAČ PAR
- návod k použití
EMHÆTTE
- Brugervejledning
LIESITUULETIN
– Käyttöohje
ΑΠΟΡΡΟΦΗΤΗΡΑΣ ΣΕ ΕΚΔΟΣΗ ΑΠΟΡΡΟΦΗΣΗΣ
– Εγχειρίδιο χρήσης
ELSZÍVÓ KÜRTŐ
– Használati utasítás
AVTREKKSKAPPE
– Bruksanvisning
OKAP ZASYSAJĄCY
- instrukcja obsługi
HOTĂ ASPIRANTĂ
– Manual de utilizare
ВЫТЯЖНОЙ КОЛПАК
- Руководство пользователя
SPISKÅPA
– Bruksanvisning
GB
P
E
NL
D
F
I
CZ
DK
FIN
GR
H
N
PL
R
RUS
S
"Caricamento dell'istruzione" significa che è necessario attendere finché il file non è caricato e pronto per la lettura online. Alcune istruzioni sono molto grandi e il tempo di caricamento dipende dalla velocità della tua connessione a Internet.
Sommario
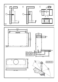
ITALIANO I GENERALITA’ Leggere attentamente il contenuto del presente libretto in quanto fornisce importanti indicazioni riguardanti la sicurezza di installazione, d’uso e di manutenzione. Conser vare il libretto per ogni ulteriore consultazione. L’apparecchio è stato progettato per uso in versione ...
- Una volta decisa la distanza prendere un taglierino e togliere il pezzo in plastica in eccesso ( Fig.5 ). • Questo prodotto può essere installato in 2 modi diff erenti: - Montaggio della cappa nella parte inferiore del pensile: Installazione di tipo A Fig. 6 - Montaggio della cappa alla parete: Ins...
il funzionamento il display deve visualizzare un movimento rotatorio dei segmenti periferici. Trascorso questo tempo il motore si spegne e il display deve visualizzare la lettera “ C ” fi ssa fi no a quando dopo altri 50 minuti il motore riparte per altri 10 minuti e così via. Per ritornare al funzion...
 
                     
                     
                     
                     
                     
                     
                     
                     
                     
                     
                     
                     
                     
                     
                     
                     
                     
                     
                     
                                                                         
                                                                         
                                                                         
                                                                         
                                                                         
                                                                         
                                                                         
                                                                         
                                                                        