Pagina 2 - Dichiarazione di conformità; Questo simbolo indica
                                                                                                                        ECONCEPT 35 A 2 Dichiarazione di conformità Il costruttore: FERROLI S.p.A.Indirizzo: Via Ritonda 78/a 37047 San Bonifacio VRdichiara che questo apparecchio è conforme alle seguenti direttive CEE:• Direttiva Apparecchi a Gas 90/396• Direttiva Rendimenti 92/42• Direttiva Bassa Tensione 73/23 (modifica...
                                                                                                             
                                                                                            
                                    Pagina 5 - comfort; - Manopola regolazione temperatura impianto
                                                                                                                        ECONCEPT 35 A 5 1.2 Pannello comandi 1 3 4 10 9 8 7 6 15 13 16 12 11 18 20 36 37 34 33 30 35 5 17 22 23 28 27 26 19 24 21 ON OFF 38 fi g. 1 1 - Tasto selezione Estate/Inverno In modalità Inverno è attivo sia il riscaldamento sia il sanitario (con bollitore esterno opzionale), in modalità Estate solo...
                                                                                                             
                                                                                            
                                    Pagina 8 - è visibile sul display; Accensione e spegnimento; Accensione
                                                                                                                        8 ECONCEPT 35 A 1.4 Regolazioni Regolazione della temperatura ambiente ( con termostato ambiente inserito ) Impostare tramite il termostato ambiente o comando remoto la temperatura desiderata all’interno dei locali. Su comando del termostato ambiente la caldaia si accende e porta l’acqua impianto al...
                                                                                                             
                                                                                            
                                    Pagina 9 - Temperatura Scorrevole; Numero curva
                                                                                                                        ECONCEPT 35 A 9 Se alla caldaia è collegato il comando remoto (opzionale), le regolazioni sopra descritte (temperatura impianto, temperatura sanitario, curva di compensazione) possono essere effettuate solo dal comando remoto stesso. Il menù utente sul pannello caldaia è disabilitato e ha solo funzi...
                                                                                                             
                                                                                            
                                    Pagina 10 - Regolazione pressione idraulica impianto
                                                                                                                        10 ECONCEPT 35 A fi g. 3 Se dopo due tentativi di ripristino il problema persiste rivolgersi al più vicino Centro Assistenza.Pe altre anomalie consultare il capitolo 3.4 “Risoluzione dei problemi”. Prima di chiamare il servizio assistenza verifi care che il problema non sia imputabile a mancaza di g...
                                                                                                             
                                                                                            
                                    Pagina 12 - Aggancio a muro; b. Tracciare i punti di fi ssaggio
                                                                                                                        ECONCEPT 35 A 12 Aggancio a muro La caldaia è fornita di serie con:- una staffa aggancio (part. 1 fi g. 5a)- una dima smontabile (part. 2 e 3 fi g. 5a)- un kit nippli e rubinetti.Dopo aver assembalto la dima con la staffa di aggancio si possono tracciare i punti di fi ssaggio e allacciamento della c...
                                                                                                             
                                                                                            
                                    Pagina 13 - Collegamenti idraulici
                                                                                                                        ECONCEPT 35 A 13 2.3 Collegamenti idraulici La potenzialità termica dell’apparecchio va stabilita preliminarmente con un calcolo del fabbisogno di calore dell’edifi cio secondo le norme vigenti. Per il buon funzionamento e per la durata della caldaia, l’impianto idraulico deve essere ben proporziona...
                                                                                                             
                                                                                            
                                    Pagina 14 - Di serire sono forniti i kit di collegamento mostrati in fi g. 8a e 8b.; Caratteristiche dell’acqua impianto
                                                                                                                        ECONCEPT 35 A 14 Di serire sono forniti i kit di collegamento mostrati in fi g. 8a e 8b. In caldaia Dall'impianto Dall'impianto In caldaia A F C D E Dall'impianto In caldaia In caldaia F E D B C A Dall'impianto Collegamento con rubinetti Collegamento con nippli A Manicotto femmina C Guarnizione OR D...
                                                                                                             
                                                                                            
                                    Pagina 15 - Riempimento caldaia e impianto; Collegamenti elettrici; Collegamento alla rete elettrica
                                                                                                                        ECONCEPT 35 A 15 Riempimento caldaia e impianto La caldaia è dotata di un rubinetto a sfera per il caricamento manuale dell’impianto di riscaldamento. La pressione di caricamento ad impianto freddo, deve essere di circa 1 bar. Qualora durante il funzionamento la pressione dell’impianto scendesse (a ...
                                                                                                             
                                                                                            
                                    Pagina 16 - Accesso alla morsettiera elettrica
                                                                                                                        ECONCEPT 35 A 16 La caldaia è precablata e dotata di cavo di allacciamento alla linea elettrica. I collegamenti alla rete devono essere eseguiti con allacciamento fi sso e dotati di un interruttore bipolare i cui contatti abbiano una apertura di almeno 3 mm, interponendo fusibili da 3A max tra calda...
                                                                                                             
                                                                                            
                                    Pagina 17 - Sonda esterna
                                                                                                                        ECONCEPT 35 A 17 Fig. 10b Fig. 10a Sonda esterna (optional) Collegare la sonda ai rispettivi morsetti. La massima lunghezza consentita del cavo elettrico di collegamento caldaia – sonda esterna è di 50 m. Può essere usato un comune cavo a 2 conduttori.La sonda esterna va installata preferibilmente s...
                                                                                                             
                                                                                            
                                    Pagina 19 - Collegamento con tubi coassiali; Uscita Laterale; Uscita Posteriore
                                                                                                                        ECONCEPT 35 A 19 * = tra 10 e 60 mm * = tra 10 e 60 mm Forare il muro 10 ÷ 20 mm più del diametro del tubo Forare il muro 10 ÷ 20 mm più del diametro del tubo 240 240 50* 115 95 80 30 50* 30 95 80 80 S 50* P 115 L D S P 125 S 30 95 D S 50* L 3095 240 240 180 240 240 180 Curva coassiale60/100cod. 1KW...
                                                                                                             
                                                                                            
                                    Pagina 20 - Uscita Verticale
                                                                                                                        ECONCEPT 35 A 20 Uscita Verticale Per l’installazione: 1. Defi nire la posizione di installazione dell’ap- parecchio 2. Forare la parete per l’uscita del tubo aria/fumi secondo i riferimenti indicati nelle fi gure. 3. Effettuare un foro di diametro 10 - 20 mm superiore al diametro nominale del tubo ...
                                                                                                             
                                                                                            
                                    Pagina 21 - Collegamento con tubi separati; Per ogni componente viene fornita nelle
                                                                                                                        ECONCEPT 35 A 21 Rif. 1 2 3 4 N ° Pezzi 16 16 1 2 Tubo verticale fumi Ø80 Tubo verticale aria Ø80 Terminale verticale Kit (1KWMR54A) Descrizione Perdita equivalente 25,6 m16,0 m12,0 m 0,6 m 54,2 m Totale Tabella 3 fi g. 12 fi g. 13 Collegamento con tubi separati L’apparecchio può essere collegato ad...
                                                                                                             
                                                                                            
                                    Pagina 22 - Tabelle perdite tubazioni ed accessori; Accessori Ø 80
                                                                                                                        ECONCEPT 35 A 22 Tabelle perdite tubazioni ed accessori I valori di perdita riportati si riferiscono a condotti ed accessori originali Ferroli. KWMA86A KWMA85A KWMA84U Aspirazione Scarico V e rticale Orizzontale V e rticale Orizzontale KWMA65W KWMA01W KWMA83W • 1,00 m Descrizione Tubo Ø 80 maschio-f...
                                                                                                             
                                                                                            
                                    Pagina 23 - ECONCEPT 35 A; Collegamento scarico condensa
                                                                                                                        ECONCEPT 35 A 23 Collegamento a canne fumarie collettive o camini singoli a tiraggio naturale La norma UNI 10641 prescrive i criteri di progettazione e verifi ca delle dimensioni interne delle canne fumarie collettive e dei camini singoli a tiraggio naturale per apparecchi a camera stagna dotati di ...
                                                                                                             
                                                                                            
                                    Pagina 24 - SERVIZIO E MANUTENZIONE; Trasformazione gas di alimentazione
                                                                                                                        ECONCEPT 35 A 24 3. SERVIZIO E MANUTENZIONE 3.1 Regolazioni Tutte le operazioni di regolazione e trasformazione devono essere effettuate da Personale Qualifi cato e di sicura qualifi cazione come il personale del Servizio Tecnico Assistenza Clienti di Zona. Starclima declina ogni responsabilità per ...
                                                                                                             
                                                                                            
                                    Pagina 25 - Messa in servizio; Prima di accendere la caldaia:; saponata per la ricerca di eventuali perdite dai collegamenti.; di produzione d’acqua sanitaria.
                                                                                                                        ECONCEPT 35 A 25 3.2 Messa in servizio La messa in servizio deve essere effettuata da Personale Qualifi cato e di sicura qualifi cazione come il personale della nostra Organizzazione di vendita ed il Servizio Tecnico Assistenza Clienti di zona. La prima accensione è gratuita e deve essere richiesta ...
                                                                                                             
                                                                                            
                                    Pagina 26 - funzionare correttamente.
                                                                                                                        ECONCEPT 35 A 26 Spegnimento Premere il tasto ON/OFF (vedi fi g. 1).Quando la caldaia viene spenta attraverso questo tasto la scheda elettronica non è più alimentata elettricamente ed il sistema antigelo è escluso.Chiudere il rubinetto del gas a monte della caldaia e togliere alimentazione elettrica...
                                                                                                             
                                                                                            
                                    Pagina 28 - Risoluzione dei problemi; Diagnostica; ) causano blocchi temporanei che vengono ripristinati
                                                                                                                        ECONCEPT 35 A 28 3.4 Risoluzione dei problemi Diagnostica In caso di anomalie o problemi di funzionamento, il display lampeggia ed appare il codice identifi cativo dell’anomalia. Le anomalie (contraddistinte con la lettera “F” ) causano blocchi temporanei che vengono ripristinati automaticamente non...
                                                                                                             
                                                                                            
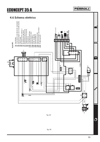
                                    Pagina 30 - CARATTERISTICHE E DATI TECNICI; Dimensioni e attacchi; Vista Superiore
                                                                                                                        ECONCEPT 35 A 30 fi g. 18 799 786 780 43 100 97 97 83 60 1 2 3 4 5 367 120 120 120 120 480 480 35 35 57 57 296 786 6 7 4 CARATTERISTICHE E DATI TECNICI 4.1 Dimensioni e attacchi Vista Superiore Vista Inferiore Legenda 1 Mandata impianto 2 Mandata bollitore (opzionale) 3 Entrata gas 4 Ritorno bollito...
                                                                                                             
                                                                                            
                                    Pagina 31 - Vista generale e componenti principali
                                                                                                                        ECONCEPT 35 A 31 4.2 Vista generale e componenti principali 179 32 179 83 44 186 19 82 188 5 21 29 191 56 201 14 10 8 7 9 11 154 145 246 196 161 22 49 34 16 35 36 74 231 130 Legenda 5 Camera stagna 7 Entrata gas 8 Mandata bollitore (opzionale) 9 Ritorno bollitore (opzionale) 10 Mandata impianto 11 R...
                                                                                                             
                                                                                            
                                    Pagina 33 - Tabella dati tecnici; Tabella 7
                                                                                                                        ECONCEPT 35 A 33 4.4 Tabella dati tecnici Riscaldamento Range di regolazione temperature riscaldamento ° C Pressione massima di esercizio riscaldamento bar Pressione minima di esercizio riscaldamento bar Capacità vaso di espansione litri Pressione di precarica vaso di espansione bar Contenuto d’acqu...
                                                                                                             
                                                                                            
                                    Pagina 34 - Perdita di carico/Prevalenza circolatori
                                                                                                                        ECONCEPT 35 A 34 4.5 Diagrammi Perdita di carico/Prevalenza circolatori 0 1 2 3 4 5 6 7 0 500 1.000 1.500 2.000 Q [l/h] H [m H 2 O] A 3 1 1 = Velocità minima circolatore 3 = Velocità massima circolatore A = Perdita di carico caldaia fi g. 21
                                                                                                             
                                                                                            
                                    Pagina 36 - Certificato di garanzia; Verona; DATA DI CONSEGNA; DATI DEL CLIENTE
                                                                                                                        Certificato di garanzia FERROLI S.p.A. Via Ritonda 78/a 37047 San Bonifacio Verona ITALY Oggetto della Garanzia e Durata L'azienda produttrice garantisce da tutti i difetti di fabbricazione e di funzionamento gli apparecchi venduti per 2 anni dalla data di consegna, documentata attraverso regolare d...